The Client

Repeat Borrower — Experienced Real Estate Developer
• Loan Purpose
Cash Out & Property New Construction
• Loan Structure
15 months interest only

The Investment

New Construction — Single Family Detached
• Purchase Price
$140,000
• Renovation Budget
$883,050 (Construction)
• Loan Amount
$903,000
• Cash Available for Purchase
$19,950
• Cash Available for Renovation
$883,050 (Construction)

The ABL Partnership

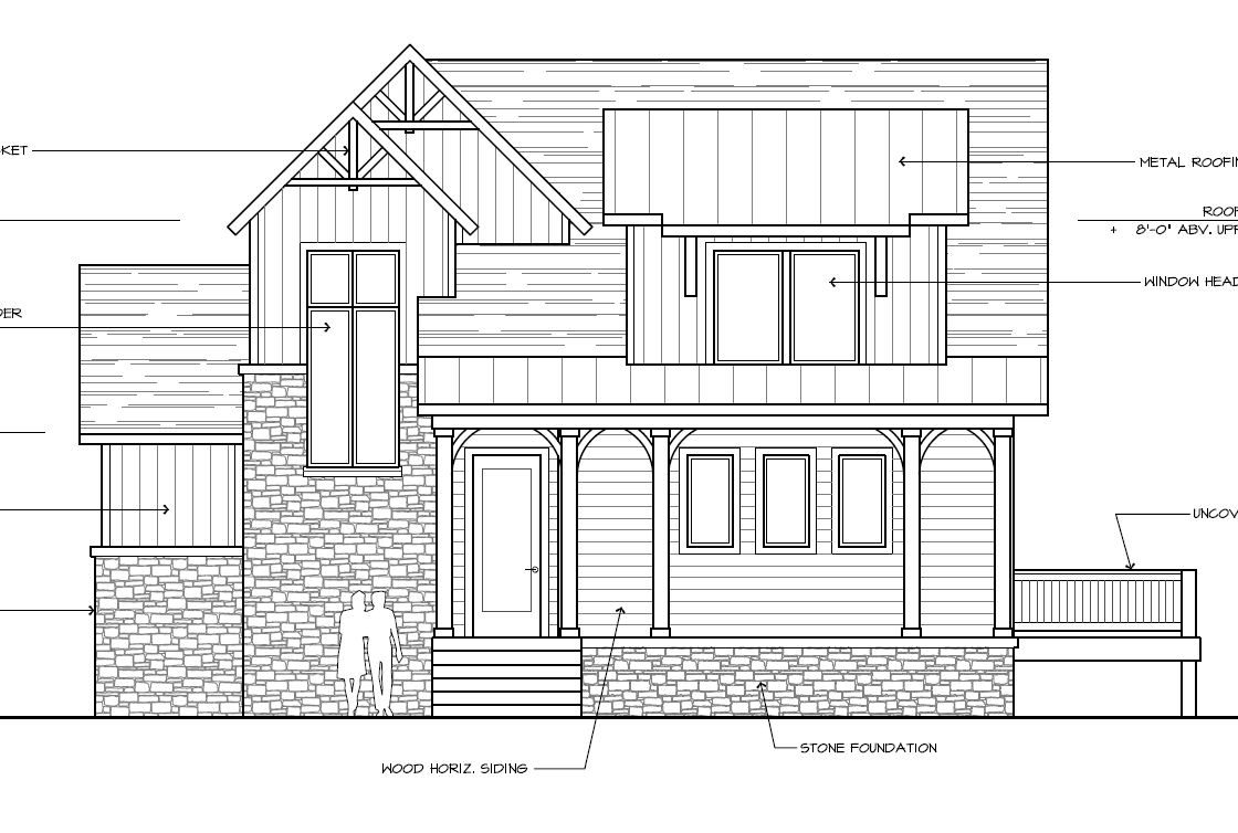
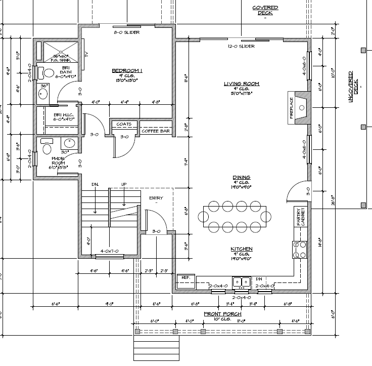
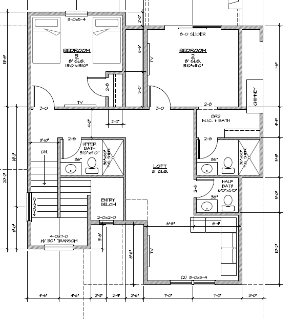
­­­Brick Moon Capital recently funded a cash out and new construction project in Walland Tennessee for a repeat borrower and experienced real estate investor. This borrower has worked with ABL on four new construction projects around Sevierville and Walland. For this project, the borrower is constructing a single family detached property with three bedrooms and four and a half bathrooms. The first floor will feature an open plan kitchen and living space as well as the main bedroom and ensuite. The second floor will have the remaining bedrooms and a loft space. The kitchen will have quartz countertops and an island that will seat 5 people. The floors will be luxury vinyl tile throughout the home and tiled floors in the bathrooms. This project is expected to last 15 months, at which time the home will be listed for final sale.

The Results

• After Repair Value
$1,411,000
• Sale Price
Back To All Case Studies