The Client

Repeat Borrower — Full Time Real Estate Investor
• Loan Purpose
Refinance & New Construction
• Loan Structure
12 months interest only

The Investment

New Construction — Single Family
• Purchase Price
$317,800
• Renovation Budget
$483,300 (Construction)
• Loan Amount
$684,000
• Cash Available for Purchase
$325,200
• Cash Available for Renovation
$358,800 (Construction)

The ABL Partnership

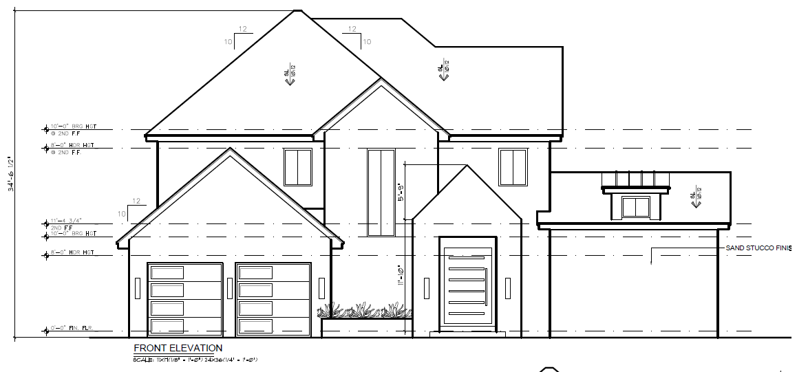
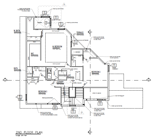
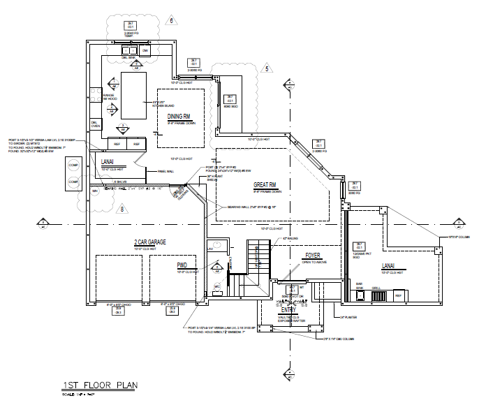
Brick Moon Capital recently funded a hard money new construction project in Winter Park Florida to a repeat borrower. This borrower is a full-time real estate investor and has used ABL to fund more than eight new construction projects in the last three years. The borrower initially purchased the property using an FHA 30-year loan, but the city approved the construction plans faster than expected so they quickly moved to refinance with us to begin demolition. Once the plans were approved and construction was started, they looked to ABL to refinance and fund the new construction. This single-family home will consist of 3 bedrooms and 3.5 bathrooms, 2-car garage, open concept kitchen and great room and an outdoor lanai with an outdoor kitchen. The interior finishes will be high end with quartz countertops, custom cabinetry, and a soaking tub in the master ensuite bathroom. Construction on this project is expected to take six months and the borrower intends to list the property for sale two months prior the renovation being complete.

The Results

• After Repair Value
$1,095,000
• Sale Price
Back To All Case Studies