The Client

Repeat Time Borrower — Experienced Real Estate Developer
• Loan Purpose
Land Purchase & Property New Construction
• Loan Structure
12 months interest only

The Investment

New Construction — Single Family
• Purchase Price
$650,000
• Renovation Budget
$875,000 (Construction)
• Loan Amount
$1,330,000
• Cash Available for Purchase
$471,900
• Cash Available for Renovation
$875,000 (Construction)

The ABL Partnership

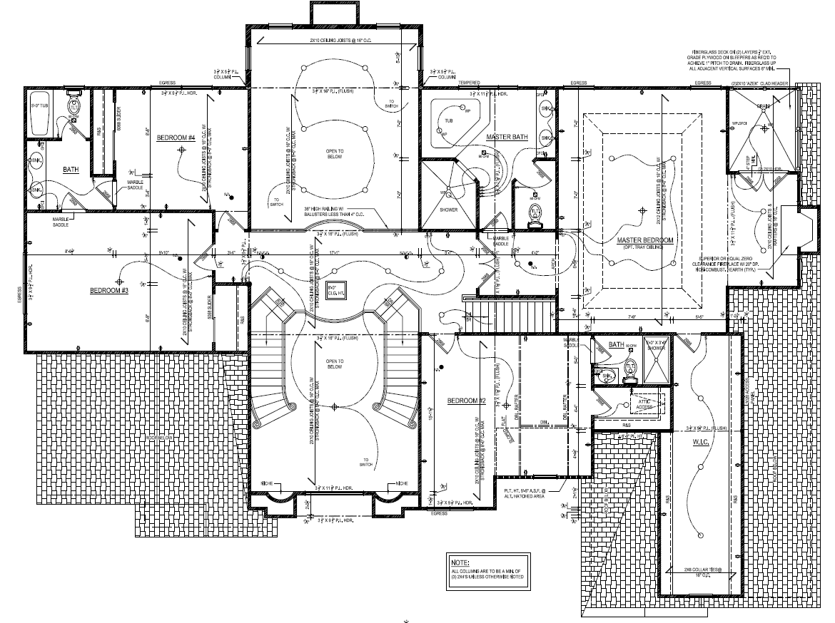
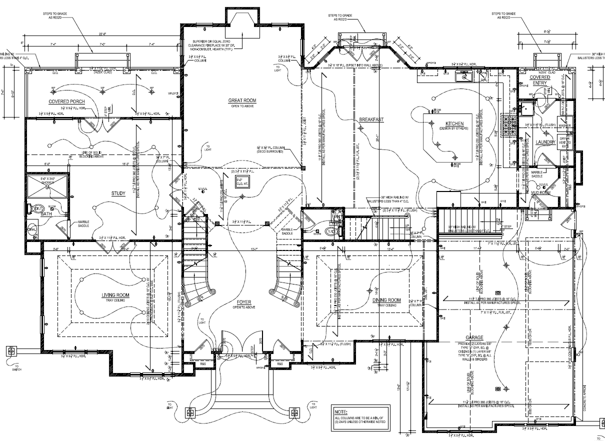
Brick Moon Capital recently funded a new construction project for a repeat borrower and experienced real estate developer in Franklin Lakes New Jersey. This borrower has completed 5 new construction projects and 5 fix and flip projects with ABL in the last three years. The borrower purchased the property and had it subdivided prior to contacting ABL for a new construction loan. For this project the borrower plans to construct a 5-bedroom 4.5-bathroom single family home with luxury finishes. The living room and kitchen are open concept, and the foyer will feature a double staircase and vaulted ceilings. The kitchen will be finished with Wolf appliances and quartz countertops. Construction on this property is expected to take 8 months and the investor is already working with a buyer on the final sale.

The Results

• After Repair Value
$2,550,000
• Sale Price
Back To All Case Studies