The Client

Repeat Borrower — Full-Time Real Estate Investor
• Loan Purpose
Cash Out & New Construction
• Loan Structure
12 months interest only

The Investment

New Construction — Single-Family Detached
• Purchase Price
$1,300,000
• Renovation Budget
$1,140,000 (Construction)
• Loan Amount
$1,890,000
• Cash Available for Purchase
$750,000
• Cash Available for Renovation
$1,140,000 (Construction)

The ABL Partnership

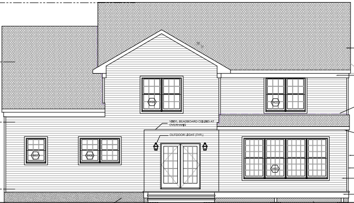
Brick Moon Capital recently funded a hard money new construction loan in Fair Haven New Jersey. The borrower is a repeat borrower and full-time real estate investor. The property was purchased for $1,300,000 with a construction budget of $1,140,000 and total loan funded at 77% LTC. The proposed build is for a single-family 4-bedroom, 3.5-bathroom measured at a total 3,135 square feet. The property will be highlighted by high-level finishes including plank façade with stone accents, Anderson windows, 9-foot-high-ceilings, and hardwood floors throughout. Kitchen will feature granite countertops, solid wood cabinets, and high-end stainless steel appliances. Bathrooms will feature custom tile work and other modern accents. Construction is expected to take six months with final sale occurring shortly after project completion.

The Results

• After Repair Value
$3,700,000
• Sale Price
Back To All Case Studies