The Client

First Time Borrower — Real Estate Developer
• Loan Purpose
Land Purchase & New Construction
• Loan Structure
12 months interest only

The Investment

New Construction — Single Family Detached
• Purchase Price
$39,900
• Renovation Budget
$146,477 (Construction)
• Loan Amount
$158,000
• Cash Available for Purchase
$11,523
• Cash Available for Renovation
$146,477 (Construction)

The ABL Partnership

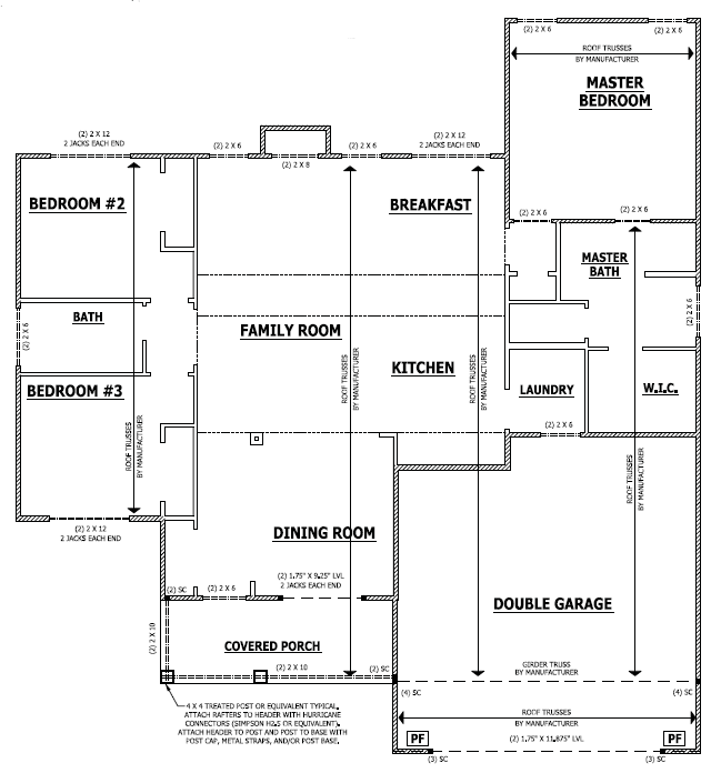
­Brick Moon Capital recently funded a new construction project for a new borrower and experienced real estate developer in Saint Pauls North Carolina. This area is located near Fort Liberty (formerly known as Fort Bragg). This area has experienced a high rate of new construction catering to the military personnel and their families. For this project, the borrower is building a single family detached home in an area where a lot of new construction is taking place. The scope of work for this project includes constructing a single story, 3 bedroom, 2 bathroom home with a covered porch. The plans feature an open-concept kitchen, family room, and dining area with a granite countertop. Luxury vinyl flooring will be installed in all rooms except the bedrooms which will be carpeted. The borrower expects this project to be completed between 6 and 9 months at which time they will list this home for final sale.

The Results

• After Repair Value
$257,000
• Sale Price
Back To All Case Studies