The Client

First-Time — Experienced Real Estate Investor
• Loan Purpose
Land Purchase & Property New Construction
• Loan Structure
12 months interest only

The Investment

New Construction — Multi-Family 4
• Purchase Price
$610,000
• Renovation Budget
$1,700,000 (Construction)
• Loan Amount
$2,079,000
• Cash Available for Purchase
$379,000
• Cash Available for Renovation
$1,700,000 (Construction)

The ABL Partnership

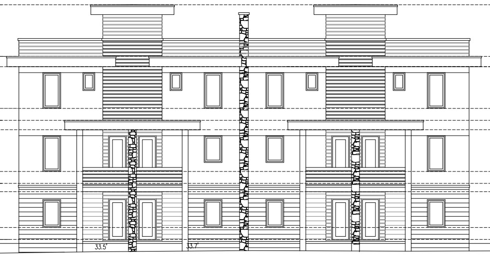
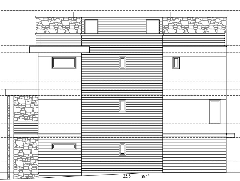
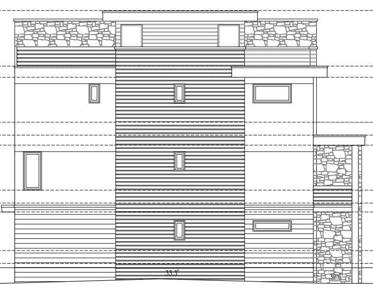
Brick Moon Capital recently funded a hard money new construction loan in Tampa Florida. The borrower is a first-time borrower and experienced real estate investor. The parcel of land was purchased for $610,000 with a construction budget of $1,700,000 with total loan funded at 90% LTC. The proposed build is a 4-unit townhouse with each unit being 3-bedroom, 3.5-bathroom measured at 3,125 square feet per unit. The build will feature mid-grade finishes, stucco facade, EPDM roof, black vinyl windows, and hollow-core doors. Units will feature 10-foot-high ceilings, vinyl plank floors, and baseboard moldings. The kitchens will be highlighted by shaker cabinets, island, granite counters, and stainless steel appliances. Bathrooms will feature colorful floors, tile walls, and unique tile schemes in each bathroom. Construction is expected to take six months with final sale occurring shortly after completion.

The Results

• After Repair Value
$3,200,000
• Sale Price
Back To All Case Studies