The Client

First-Time Borrower — Experienced Real Estate Investor
• Loan Purpose
Property New Construction Only
• Loan Structure
12 months interest only

The Investment

New Construction — Luxury Single-Family
• Purchase Price
$427,000
• Renovation Budget
$1,047,000 (Construction)
• Loan Amount
$1,047,000
• Cash Available for Purchase
$0
• Cash Available for Renovation
$1,047,000 (Construction)

The ABL Partnership

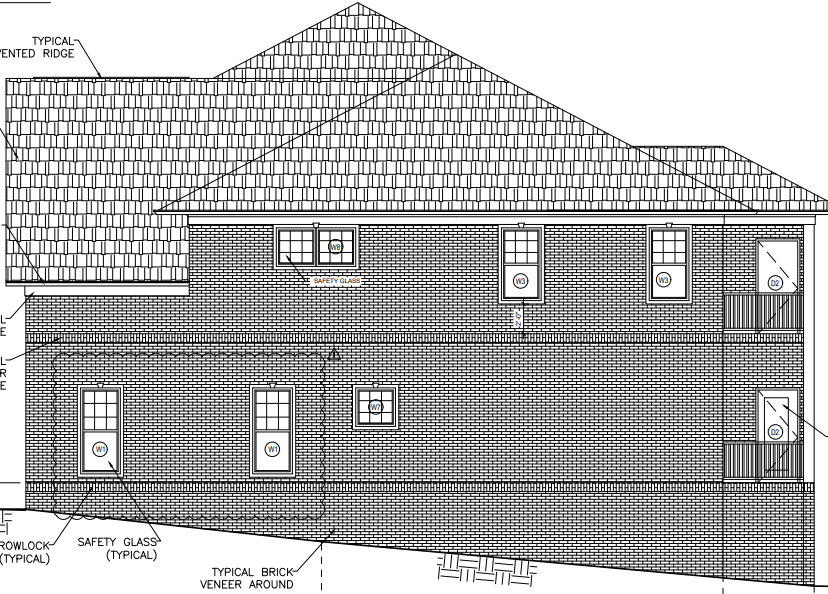
Brick Moon Capital recently funded a hard money new construction loan in Annandale Virginia. The borrower is a first-time borrower and experienced real estate investor. The property was purchased for $427,000 with a construction budget of $1,047,000 and total loan funded at 71%. The proposed build is for a single-family 7-bedroom, 8-bathroom measured at approximately 9,000 square feet. Highlights will include a hardy board and stone accented façade, shingle roof, solid core doors, hardwood floors, and extensive molding throughout. Finished basement will include a movie theater, wet bar, wine cellar, rec room, and full bedroom with bathroom. Kitchen will include custom cabinets, mixed quartz and granite countertops, and stainless steel appliances. Each bedroom will feature in-suite bathroom and walk-in closet. Construction is expected to take eight months with final sale occurring before project completion.

The Results

• After Repair Value
$1,850,000
• Sale Price
Back To All Case Studies