The Client

First Time Borrower — Real Estate Developer
• Loan Purpose
Refinance & New Construction
• Loan Structure
12 months interest only

The Investment

New Construction — 4 Townhomes
• Purchase Price
$110,000
• Renovation Budget
$840,000 (Construction)
• Loan Amount
$807,000
• Cash Available for Purchase
$0
• Cash Available for Renovation
$807,000 (Construction)

The ABL Partnership

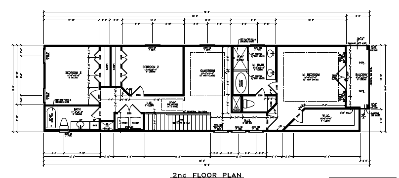
­Brick Moon Capital recently funded a new construction project for a new borrower and experienced investor in Houston Texas. This borrower purchased a parcel of land in Houstin in 2022 with the intention of building on it. Since they made this purchase, they have cleared the area to begin construction and now own the land free and clear. This borrower reached out to ABL to refinance the land to construct four three-bedroom, two and half bath townhomes. The scope of work on this project entails constructing a two floor townhome with stone veneer on the exterior. The interior will be outfitted with tile flooring on the first floor and engineered hardwood on the second, shaker cabinets in the kitchen and quartz counters with a 6-person island. The borrower expects this project to be completed in less than 9 months and their exit strategy is to list the townhomes for final sale.

The Results

• After Repair Value
$314,000
• Sale Price
Back To All Case Studies