The Client

First-Time Borrower — New Real Estate Investor
• Loan Purpose
Property New Construction
• Loan Structure
12 months interest only

The Investment

New Construction — Single Family
• Purchase Price
$248,000
• Renovation Budget
$635,816 (Construction)
• Loan Amount
$612,000
• Cash Available for Purchase
$0
• Cash Available for Renovation
$303,500 (Construction)

The ABL Partnership

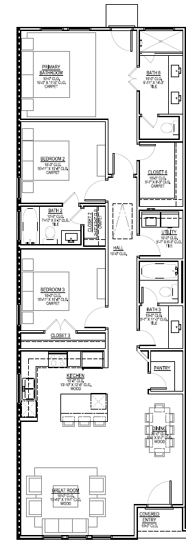
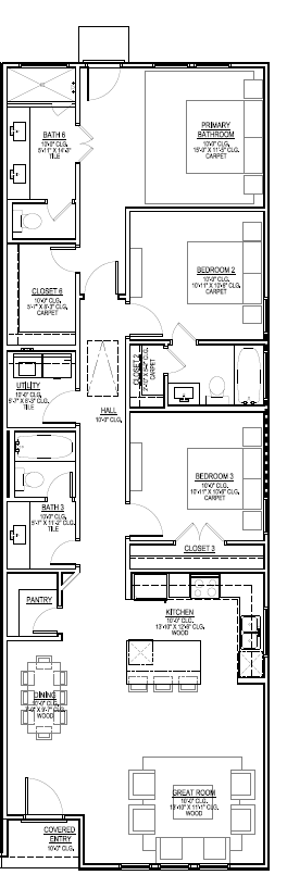
­­­­Brick Moon Capital recently funded a new construction loan for a first-time borrower and new real estate developer in Auburn Georgia. This borrower completed 1 new construction project prior to this, but completed multiple fix and flips with other lenders. Prior to contacting ABL for the construction funding the borrower purchased the land and used their own capital to begin construction. ABL Funded $612,000 for the construction on this project which includes $303,500 for the construction budget and $308,500 cash out for work completed. This home will be 2-stories with a finished basement. The first floor features an open floorplan kitchen and living room, office, dining room, and spare bedroom. The second floor will feature the main bedroom with an ensuite bathroom with a soaking tub, standing stall shower, a double vanity with quartz countertops, and oversized walk-in closet. Flooring throughout the home will be engineered hardwood and ceramic tile. Construction is expected to take up to 8 months, at which time the borrower intends to list the property for final sale.

The Results

• After Repair Value
$1,020,000
• Sale Price
Back To All Case Studies