The Client

Repeat Borrower — Experienced Real Estate Investor
• Loan Purpose
Land Purchase & Property New Construction
• Loan Structure
12 months interest only

The Investment

New Construction — Single-Family Detached
• Purchase Price
$450,000
• Renovation Budget
$565,100 (Construction)
• Loan Amount
$880,000
• Cash Available for Purchase
$314,900
• Cash Available for Renovation
$565,100 (Construction)

The ABL Partnership

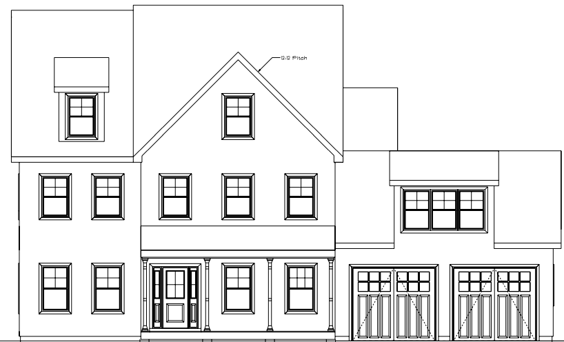
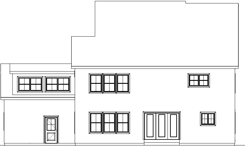
Brick Moon Capital recently funded a hard money new construction loan in Fairfield Connecticut. The borrower is a repeat borrower and experienced real estate investor. The property was purchased for $450,000 with a construction budget of $565,100 and total loan funded at 87% LTC. The existing home will be torn down and the proposed build is for a single-family 5-bedroom, 4.5-bathroom measured at 4,700 square feet. This new construction project will be a modern farmhouse that features high-end finishes, shingle-roof, oak floors, and solid-wood doors. Other highlights will include kitchen with center island and Thermador appliances, bathrooms with unique tiling and dual vanities, and high-end molding throughout the home. Construction is expected to take between six and eight months with final sale occurring shortly after completion.

The Results

• After Repair Value
$1,350,000
• Sale Price
Back To All Case Studies