The Client

First Time Borrower — Experienced Real Estate Developer
• Loan Purpose
Cash Out Refinance & New Construction
• Loan Structure
12 months interest only

The Investment

New Construction — Single Family
• Purchase Price
$250,000
• Renovation Budget
$636,840 (Construction)
• Loan Amount
$715,000
• Cash Available for Purchase
$78,160
• Cash Available for Renovation
$636,840 (Construction)

The ABL Partnership

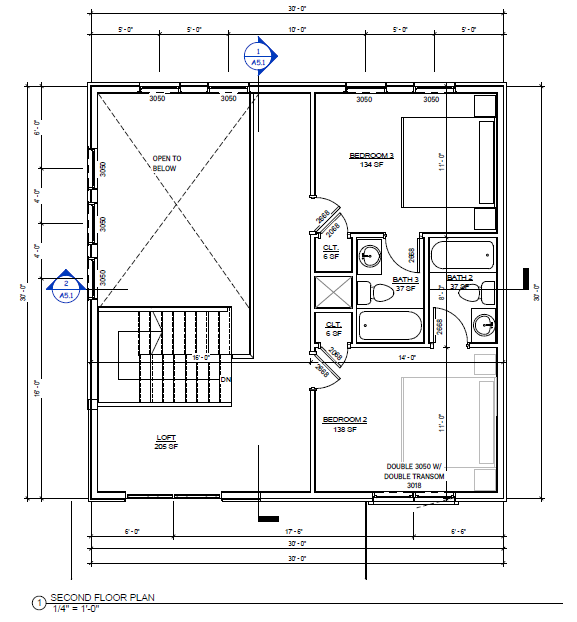
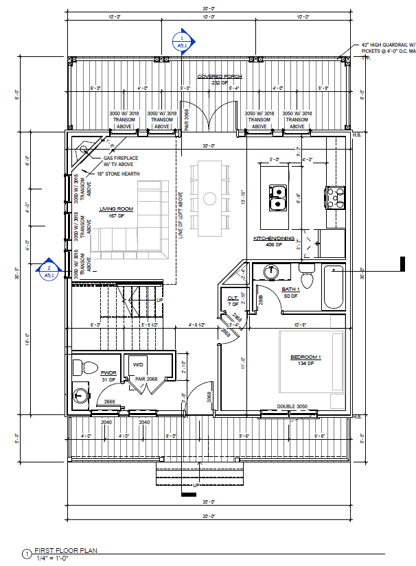
­­Brick Moon Capital recently funded a new construction project for a first-time borrower and experienced real estate developer in Pigeon Forge Tennessee. This borrower has completed more than 5 ground up construction projects in the last three years, some of which were the same model as this project. The borrower purchased this lot in cash in 2021 and completed the work for rezoning the land and the horizontal work prior to contacting ABL for the New Construction loan. For this property, the borrower will construct a single-family home with a pool in the backyard. The interior of the home will feature LVP flooring throughout the home, stainless steel appliances in the kitchen, and open concept living spaces. Construction is expected to last 6 months and the borrower plans to hold the property as a short-term rental.

The Results

• After Repair Value
$1,150,000
• Sale Price
Back To All Case Studies