The Client

First-Time Borrower — Experienced Real Estate Developer
• Loan Purpose
Cash Out Refinance & New Construction
• Loan Structure
12 months interest only

The Investment

New Construction — Single Family
• Purchase Price
$122,500
• Renovation Budget
$714,000 (Construction)
• Loan Amount
$752,000
• Cash Available for Purchase
$38,000
• Cash Available for Renovation
$714,000 (Construction)

The ABL Partnership

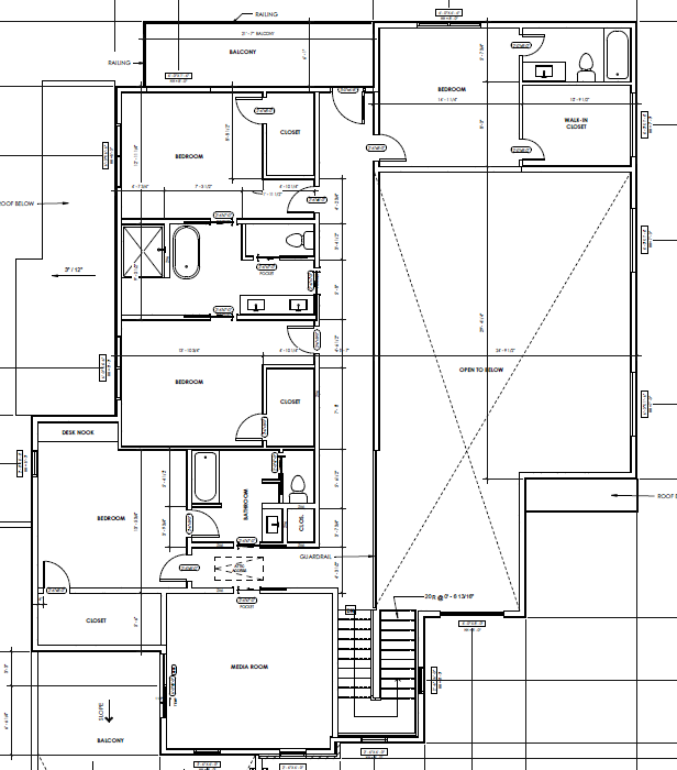
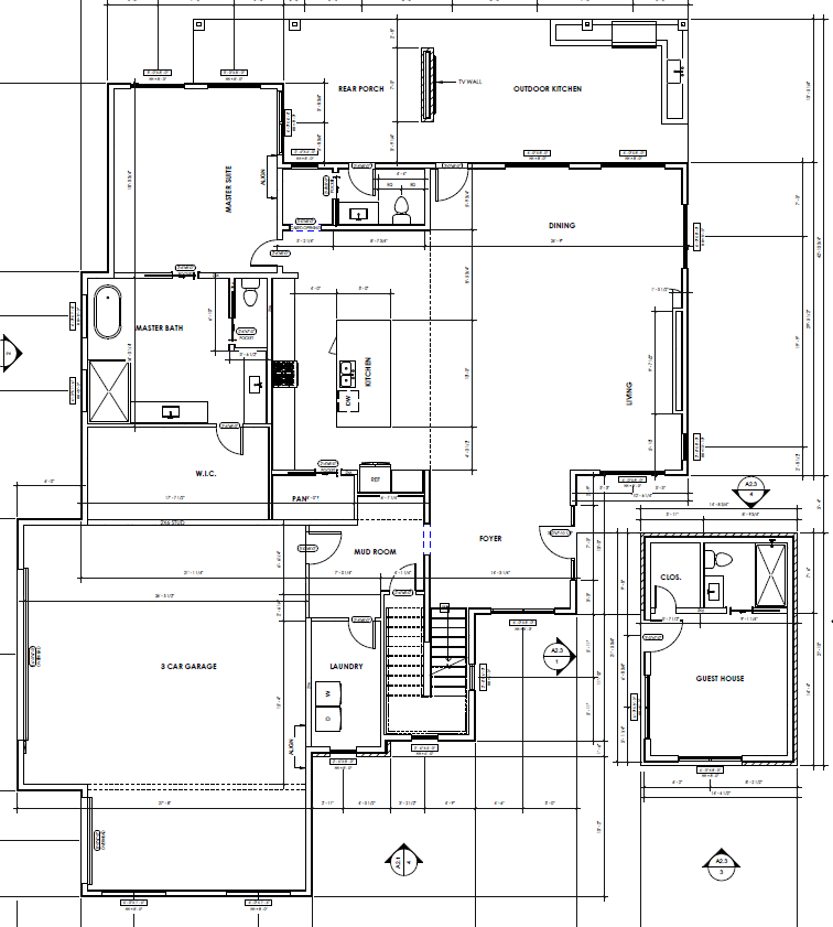
­­­Brick Moon Capital recently funded a cash out and new construction loan for an experienced builder in in Cedar Hill Texas. This borrower is a high-grade builder focusing on single-family homes in the Dallas area. Having successfully completed projects like this one in recent years, ABL extended a loan amount of $752,000 which equates to 90% LTC. Of the $752,000 loan, $714,000 will be used for construction of this single-family home. The scope of work for this project includes the construction of a 2-story home as well as a guest house. The main house features a 3-car garage, 5 bedrooms and 4 and a half bathrooms. The first floor has an open plan kitchen and living room. The kitchen will have custom white oak cabinets, quartz countertops, and an island with a double sink. The main bathroom will be finished with a large soaking tub, a tiled shower stall, double vanity, and private toilet room. The remaining bedrooms and bathrooms will be on the second floor, and each will feature a large closet. Once construction is complete in 10 months the borrower will list this project for final sale.

The Results

• After Repair Value
$1,400,000
• Sale Price
Back To All Case Studies