The Client

Repeat Borrower — Experienced Real Estate Developers
• Loan Purpose
Property New Construction Only
• Loan Structure
12 months interest only

The Investment

New Construction — 4 Single Families
• Purchase Price
$76,000
• Renovation Budget
$1,439,540 (Construction)
• Loan Amount
$1,333,000
• Cash Available for Purchase
$112,320
• Cash Available for Renovation
$1,220,680 (Construction)

The ABL Partnership

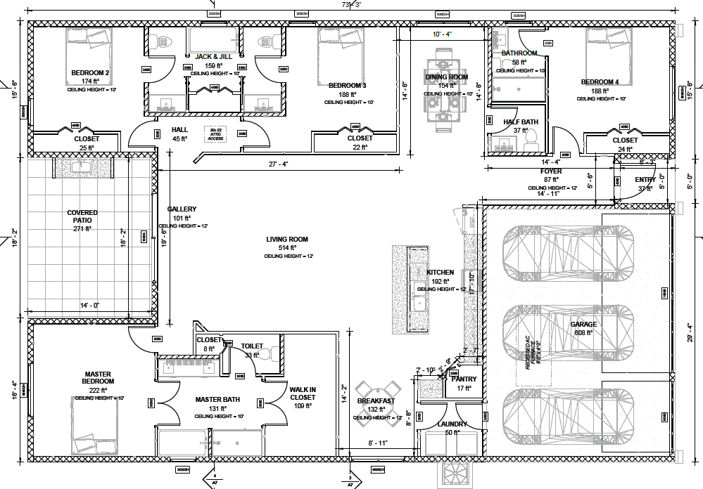
Brick Moon Capital recently funded a hard money new construction blanket loan for experienced real estate developers in Port Charlotte Florida. The borrower purchased the land, secured the appropriate zoning and permit requirements, and began construction prior to contacting ABL for a new construction loan. At the time this deal closed, each property was already in process and ABL funded the borrower for the work completed at closing. The renovation budget for this property was projected to be an LTV of around 67% for a budget of $452,066. This construction budget includes a three-car garage, open kitchen and living space, three bedrooms and two and a half bathrooms. The floors will be porcelain tiles throughout the home and the kitchen will be finished with quartz countertops, waterfall island, and stainless-steel appliances. The three other homes covered under this blanket new construction loan will have similar finishes, but the borrower plans to use another architectural model for the floorplan for at least two of the properties. The borrower expects all construction to be completed within 6 months and will list the homes for final sale once sheetrock has been installed.

The Results

• After Repair Value
$1,975,000
• Sale Price
Back To All Case Studies