The Client

Repeat Borrower — Experienced Real Estate Investor
• Loan Purpose
Land Purchase & Property New Construction
• Loan Structure
12 months interest only

The Investment

New Construction — Single Family
• Purchase Price
$150,000
• Renovation Budget
$305,000 (Construction)
• Loan Amount
$409,000
• Cash Available for Purchase
$104,000
• Cash Available for Renovation
$305,000 (Construction)

The ABL Partnership

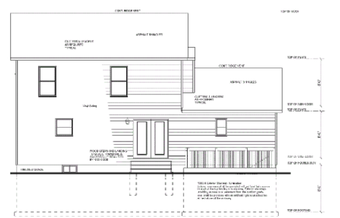
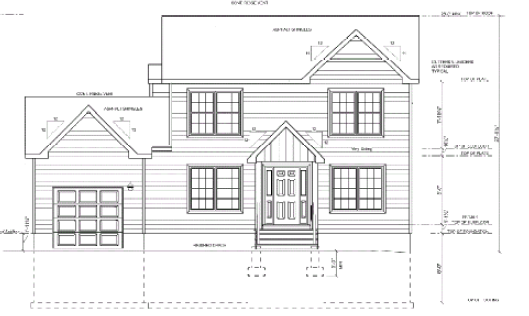
­­Brick Moon Capital recently funded a land purchase and new construction project in Middle Island, New York with a repeat borrower and experienced real estate investor. This single family home lot was purchased for $150,000 with a construction budget of $305,000 and an appraisal of $650,000. The new construction features a vacant lot that requires clearing but is mostly flat. It will have builder-grade plus finishes with vinyl siding, architectural shingles, and single-hung vinyl windows throughout. The ceilings will be 8 feet 1 inch high, with hardwood floors on the first level and carpet on the second, though hallway hardwood is optional. The kitchen will include white shaker cabinets, granite countertops, and stainless-steel appliances, while the master bathroom offers a walk-in shower and closet. Secondary bathrooms feature single vanities and tubs, with a half bath on the first floor. The layout will be an open-concept living/dining/kitchen area with a central island and a family room to the right. The second floor will include secondary bedrooms and a full bath, with the master bedroom occupying the entire left half. The borrower expects 6-7 month timeline to build and 2 months to sell.

The Results

• After Repair Value
$650,000
• Sale Price
Back To All Case Studies