The Client

Repeat Borrower — Experienced Real Estate Investor
• Loan Purpose
Land Purchase & Property New Construction
• Loan Structure
12 months interest only

The Investment

New Construction — Single Family
• Purchase Price
$390,000
• Renovation Budget
$810,182 (Construction)
• Loan Amount
$984,000
• Cash Available for Purchase
$173,818
• Cash Available for Renovation
$810,182 (Construction)

The ABL Partnership

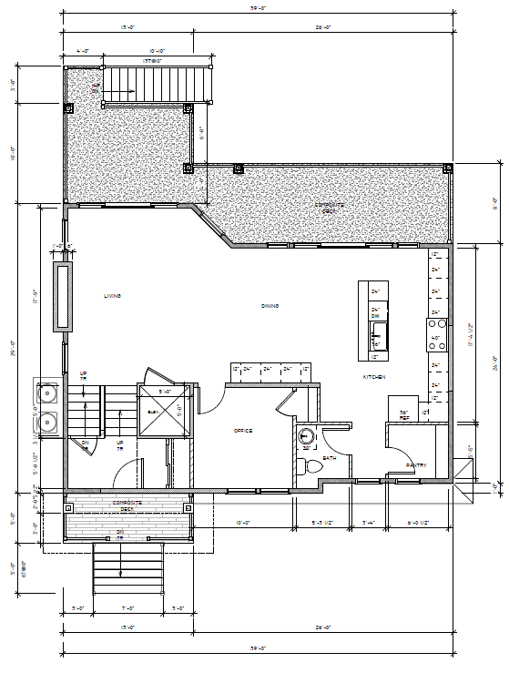
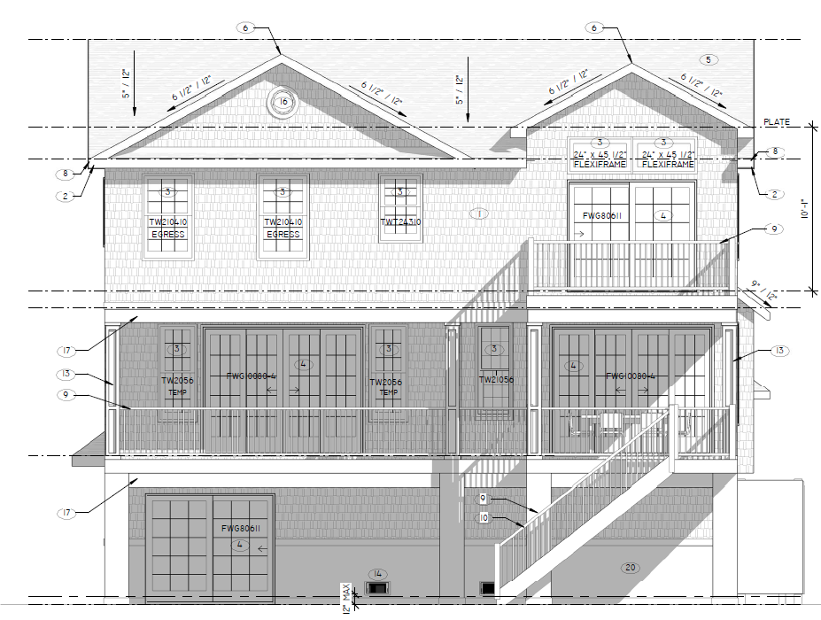
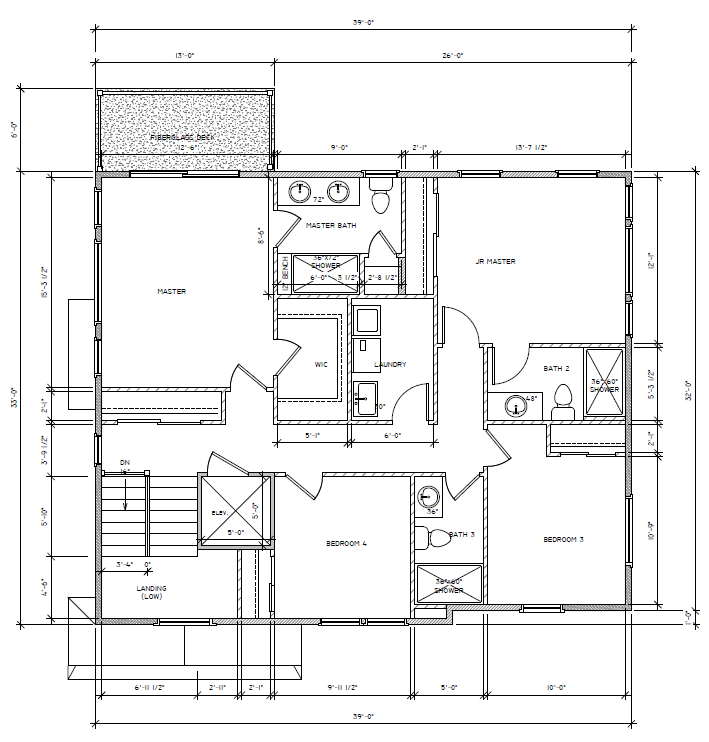
­ABL recently funded a new construction single family project in Manahawkin New Jersey for an experienced real estate investor and repeat borrower. Plans for this property include creating a three story home with a two car garage on the bottom floor. The primary suite and three bedrooms will be on the third floor which can be reached by either stairs or elevator. Finishes in the home will be high end including custom cabinets, quartz countertops, large island, and tilework in all the bathrooms. Since this property is in a beach town the exterior façade will have cedar impression siding and the interior will have a beach-inspired color scheme. Construction for this project will take approximately 10 months to complete at which time the borrower intends to sell this property.

The Results

• After Repair Value
$1,575,000
• Sale Price
Back To All Case Studies