The Client

First Time Borrower — Experienced Real Estate Developer
• Loan Purpose
Refinance & New Construction
• Loan Structure
18 months interest only

The Investment

New Construction — Single Family
• Purchase Price
$14,950
• Renovation Budget
$420,000 (Construction)
• Loan Amount
$360,000
• Cash Available for Purchase
$0
• Cash Available for Renovation
$360,000 (Construction)

The ABL Partnership

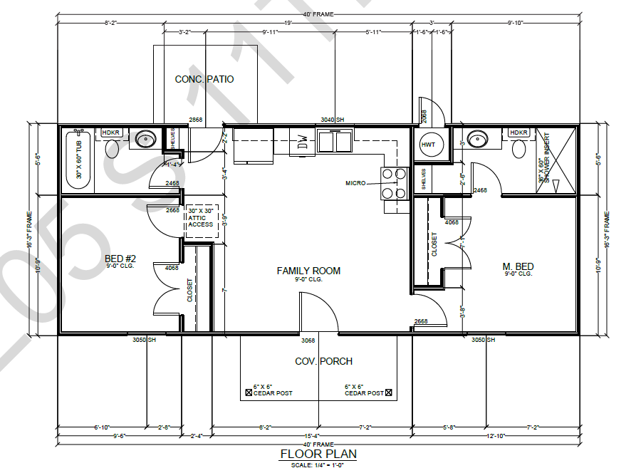
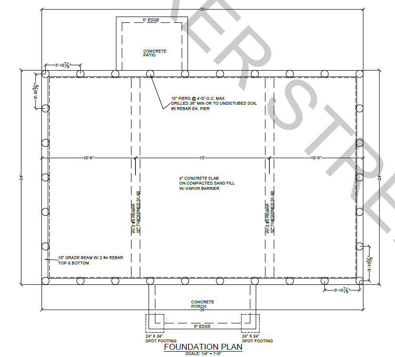
­Brick Moon Capital recently funded loan refinance and new construction blanket loan for a first-time borrower in Chickasha Oklahoma. This borrower is using a blanket loan to cover the construction of 13 single family homes. The borrower purchased lots and worked with the town to subdivide them for the new builds. This blanket loan is one of two for this borrower, and they are planning to construct a total of 26 single family homes throughout Chickasha and the surrounding area. The borrower is a very experienced property developer and has completed 20 new construction projects in the last three years and has plans to continue building this area of OK up. They are using two build types to complete this project, one that is 640 square feet, the other is 864 square feet. Construction is expected to last around 18 months and will be sold to end buyers.

The Results

• After Repair Value
$605,000
• Sale Price
Back To All Case Studies