The Client

Repeat Borrower — Experienced Real Estate Developer
• Loan Purpose
Land Purchase & New Construction
• Loan Structure
12 months interest only

The Investment

New Construction — Single Family Detached
• Purchase Price
$675,000
• Renovation Budget
$565,100 (Construction)
• Loan Amount
$1,037,000
• Cash Available for Purchase
$471,900
• Cash Available for Renovation
$565,100 (Construction)

The ABL Partnership

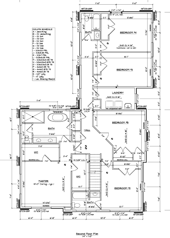
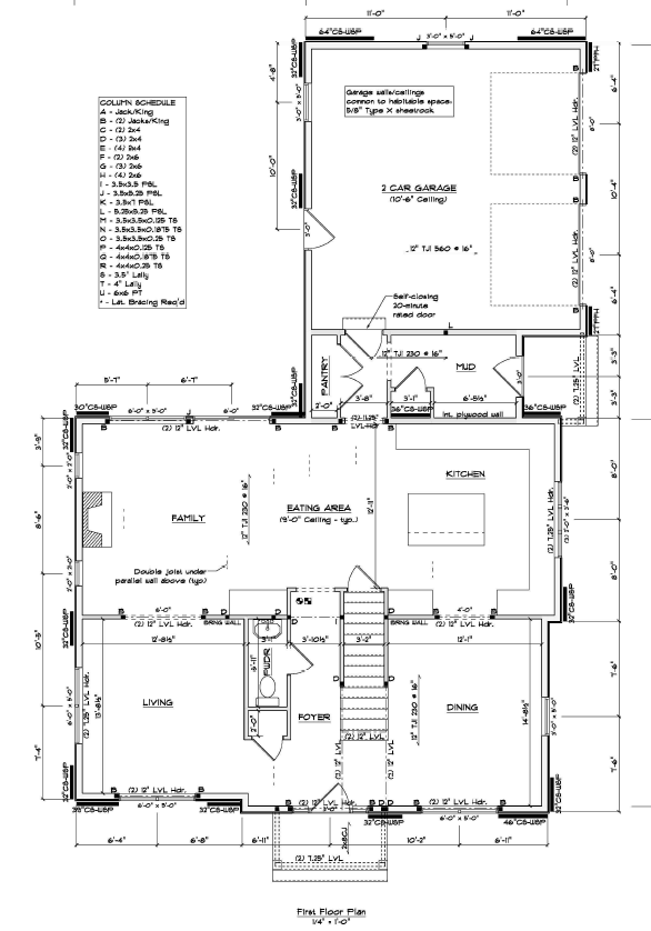
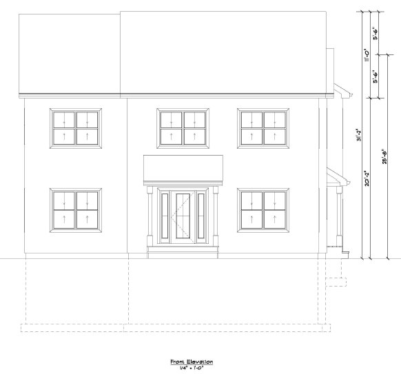
­Brick Moon Capital recently funded a new construction project for a repeat borrower and experience real estate developer in Fairfield Connecticut. This borrower has completed more than 5 roundtrips with ABL in the last 3 years, making them very experienced developers. The scope of work on this project includes erecting a 3,800 square foot home with 5 bedrooms and 3.5 bathrooms. Finishes in this property will be high end including Thermador appliances in the kitchen. This home will have an open concept kitchen and living space with 9-foot ceilings. Each bathroom will have unique tile choices so each stands out, and the master will feature dual vanities, stand alone tub, and shower. The borrower expects to complete work on this property in 9 months and sell the property within 3.

The Results

• After Repair Value
$1,740,000
• Sale Price
Back To All Case Studies