The Client

First Time Borrower, Experienced Investor
• Loan Purpose
Land Purchase And New Construction
• Loan Structure
12 Months Interest Only

The Investment

New Construction - Single Family
• Purchase Price
$160,000
• Renovation Budget
$231,000 (Construction)
• Loan Amount
$332,350
• Cash Available for Purchase
$101,350
• Cash Available for Renovation
$231,000 (Construction)

The ABL Partnership

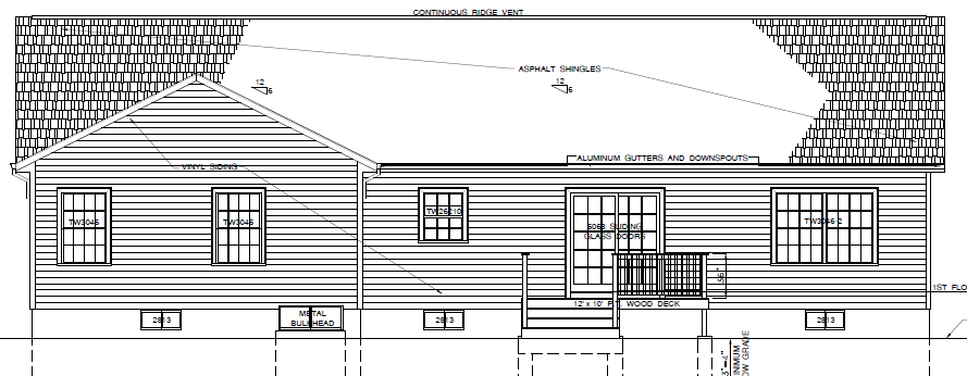
Brick Moon Capital recently funded a hard money new construction loan in West Greenwich Rhode Island for a first-time borrower with previous real estate investing experience. The parcel of land was purchased for $160,000 with a construction budget of $231,000 and a total loan funded at nearly 85% LTC. The build is set to be a single-family ranch-style 3-bedroom, 2.5-bathroom measured at approximately 1650 square feet. The build will follow an open floor plan with hardwood floors and can lights throughout. Highlights will include a kitchen with white shaker cabinets and island with quartz countertop, master bedroom with walk-in tiled floor-to-ceiling shower, and double sink vanity with marble top in both bathrooms. Construction is expected to take approximately five or six months, with sale occurring within two months after that.

The Results

• After Repair Value
$520,000
• Sale Price
Back To All Case Studies