The Client

First-Time Borrower – Experienced Real Estate Investor
• Loan Purpose
Land Purchase & Property New Construction
• Loan Structure
12 Months Interest Only

The Investment

Demolish & Build – Luxury Single-Family
• Purchase Price
$1,100,000
• Renovation Budget
$1,250,000 (Construction)
• Loan Amount
$1,915,000
• Cash Available for Purchase
$665,000
• Cash Available for Renovation
$1,250,000 (Construction)

The ABL Partnership

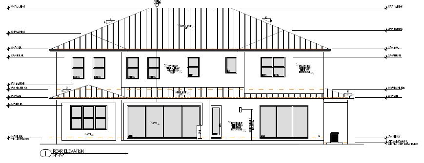
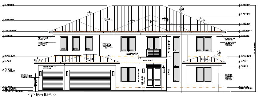
Brick Moon Capital recently funded a new construction loan in Tampa Florida. The borrower is a first-time and experienced real estate investor. The property was purchased for $1,100,000 with a construction budget of $1,250,000 and total loan funded at 81% LTC. This proposed build is a single-family 5-bedroom, 6-bathroom measured at 6,106 square feet and will require the demolishing of existing property. This two-story home will feature luxury finishes and include high-end impact windows, metal roof, hardwood floors, solid core doors, and 10-foot-high ceilings. Home will also feature a game room, extra outdoor kitchen, and outdoor pool. Kitchen will be highlighted by Calcutta marble counters, subway tile, waterfall island, and sub-zero appliances. Bathrooms will feature marble vanities, marble tiles, and frameless enclosures. Construction is expected to take ten months with final sale expected to occur before project completion.

The Results

• After Repair Value
$3,700,000
• Sale Price
Back To All Case Studies