The Client

Repeat Borrower — Experienced Real Estate Developer
• Loan Purpose
Refinance & New Construction
• Loan Structure
12 months interest only

The Investment

New Construction — Townhouse
• Purchase Price
$700,000
• Renovation Budget
$2,263,100 (Construction)
• Loan Amount
$2,450,000
• Cash Available for Purchase
$411,700
• Cash Available for Renovation
$2,038,300 (Construction)

The ABL Partnership

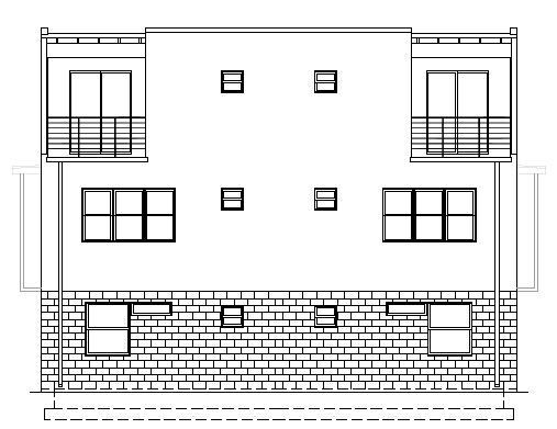
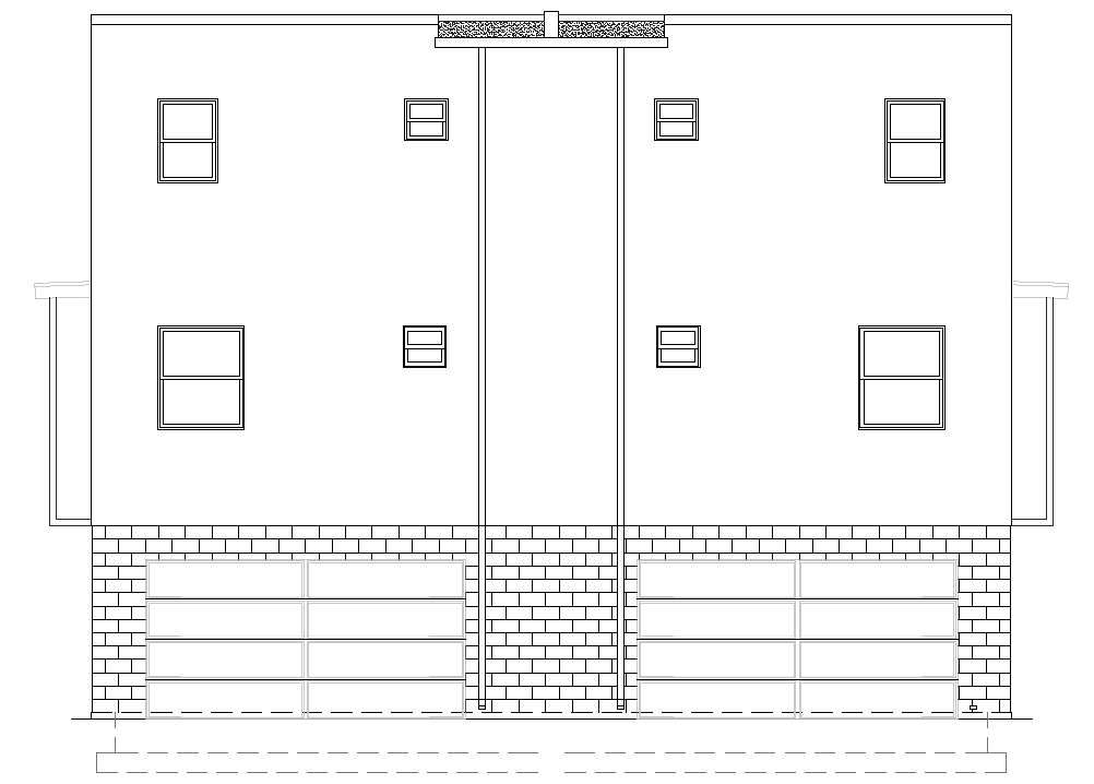
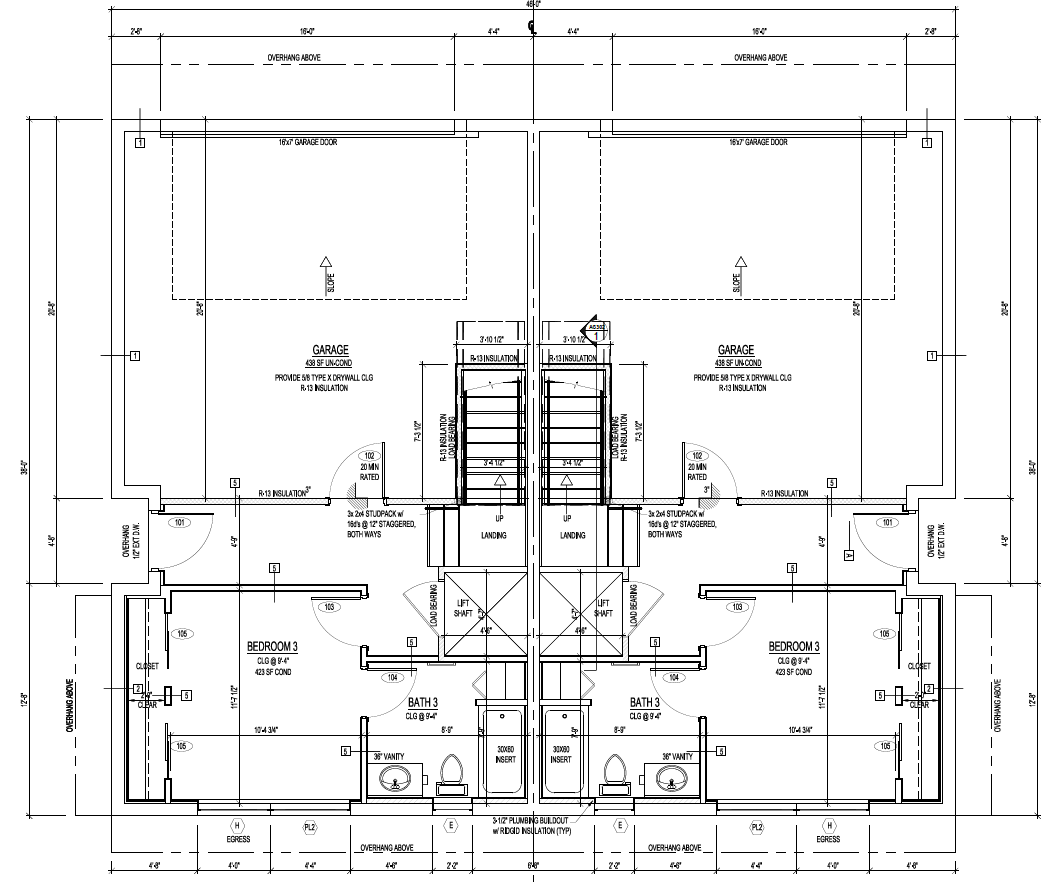
Brick Moon Capital recently funded a new construction loan for a repeat borrower and experienced real estate developer in Tampa Florida. This borrower is refinancing two existing ABL loans into a blanket loan to build an 8-unit townhome. Prior to refinancing the borrower completed work to clear the land, obtain permits from the city, rezoned the land for 8 buildable lots, and install an underground drain system. For the townhome construction the borrower plans to build 3 duplex properties with 3 bedrooms and 3 bathrooms with a total square footage of 4,576, and 2 single family homes also with 3 bedrooms and 3 bathrooms with a total square footage of 6,448. The finishes for these properties include luxury engineered wood flooring throughout, quartz countertops in the kitchen, and stainless-steel appliances. Construction for these townhomes is expected to be completed within 12 months.

The Results

• After Repair Value
$5,425,000
• Sale Price
Back To All Case Studies