The Client

Repeat Borrower & Experienced Builder
• Loan Purpose
Construction Only
• Loan Structure
12 Months Interest Only

The Investment

New Construction – Single-Family
• Purchase Price
$185,000
• Renovation Budget
$450,000 (Construction)
• Loan Amount
$450,000
• Cash Available for Purchase
• Cash Available for Renovation
$450,000 (Construction)

The ABL Partnership

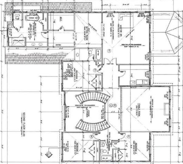
Brick Moon Capital recently funded a hard money new construction loan in Southbury CT. The borrower is a repeat borrower and experienced builder. The property was purchased for $185,000 with a construction budget of $450,000 and total loan funded at nearly 71% LTC. The proposed build is a 4-bedroom, 3.5-bathroom single-family home that will be measured at approximately 4,000 square feet. Build will use standard 30-year roof, vinyl siding, 9-foot-high ceilings, unfinished basement, and hardwood floors throughout except for carpeting in the bedrooms. The home will be highlighted by a large rear deck off the kitchen, cathedral ceilings in the master bedroom, stone-center façade, and more. Property was pre-sold, and construction is expected to take between six and seven months, depending on weather conditions.

The Results

• After Repair Value
$805,000
• Sale Price
Back To All Case Studies