The Client

Repeat Borrower & Experienced Builder
• Loan Purpose
Land Purchase And New Construction
• Loan Structure
12 Months Interest Only

The Investment

New Construction – Single-Family
• Purchase Price
$310,000
• Renovation Budget
$390,000 (Construction)
• Loan Amount
$621,000
• Cash Available for Purchase
$231,000
• Cash Available for Renovation
$390,000 (Construction)

The ABL Partnership

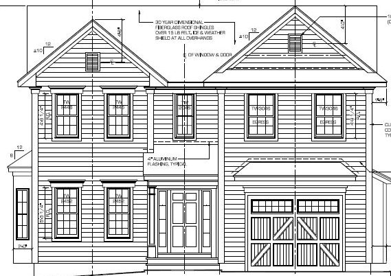
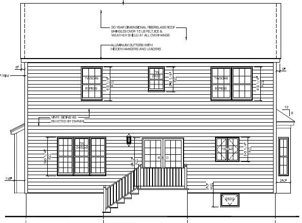
Brick Moon Capital recently funded a new construction hard money loan in Scotch Plains New Jersey. The borrower is a repeat borrower that is an experienced builder and real estate investor. The property was purchased for $310,000 with a construction budget of $390,000 and total loan funded at 89% LTC. The proposed build is a single-family 4-bedroom, 2.5-bathroom measured at 2,700 square feet. Property will be a modern farmhouse and exterior will feature black frame windows, white vinyl siding, and 30-year shingle roof. Interior will be highlighted by 9-foot-high ceilings, white oak floor, simple moldings, and open floor plan. Baths will feature unique tiles and design and one bedroom will be able to easily convert into home office setting. Construction is expected to take six months with final sale occurring within 60 days of project completion.

The Results

• After Repair Value
$980,000
• Sale Price
Back To All Case Studies