The Client

Experienced Investor & Builder
• Loan Purpose
Cash Out And New Construction
• Loan Structure
12 Months Interest Only

The Investment

New Construction - Single Family Home
• Purchase Price
$120,000
• Renovation Budget
$300,000 (Construction)
• Loan Amount
$336,000
• Cash Available for Purchase
$36,000 (Cash Out)
• Cash Available for Renovation
$300,000 (Construction)

The ABL Partnership

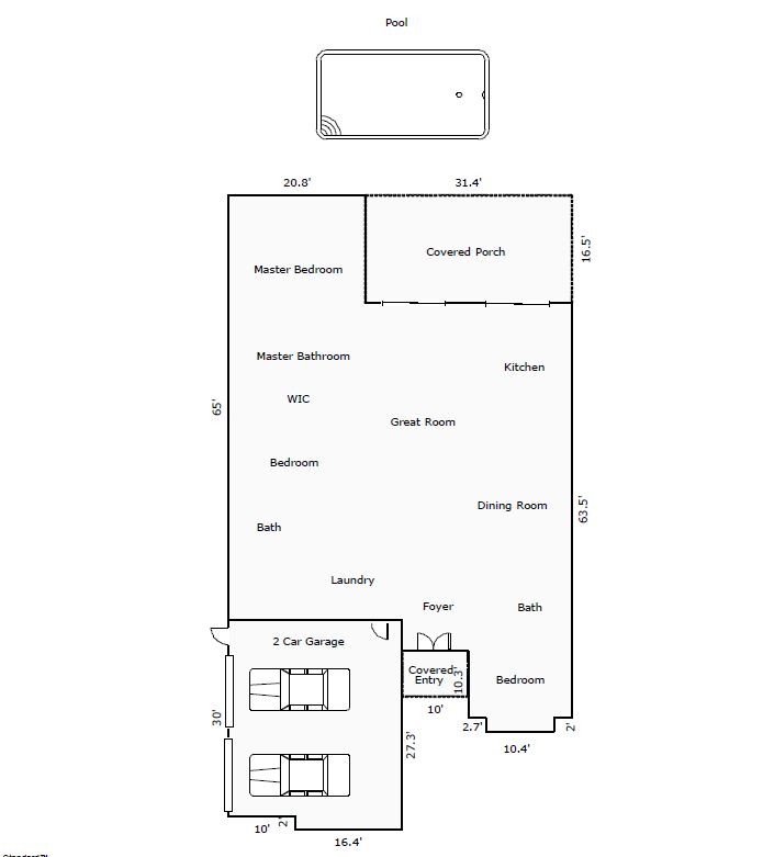
This experienced builder and real estate investor came to Brick Moon Capital by way of another lender who was unable to fund this project. ABL is happy to finance this hard money loan for new construction to cash out the investor on the land he purchased and provide 100% of the construction financing. The scope of work for this new construction project includes building a 3,200 square foot 3 bedroom 3 bathroom home with an upscale finish including modern amenities.

The Results

• After Repair Value
$560,000
• Sale Price
Back To All Case Studies