The Client

Repeat Borrower – Full-Time Real Estate Investor
• Loan Purpose
Cash Out & New Construction
• Loan Structure
12 Months Interest Only

The Investment

Multiple New Construction – Single Family Attached
• Purchase Price
$286,500
• Renovation Budget
$1,617,720 (Construction)
• Loan Amount
$1,713,000
• Cash Available for Purchase
$95,280
• Cash Available for Renovation
$1,617,720

The ABL Partnership

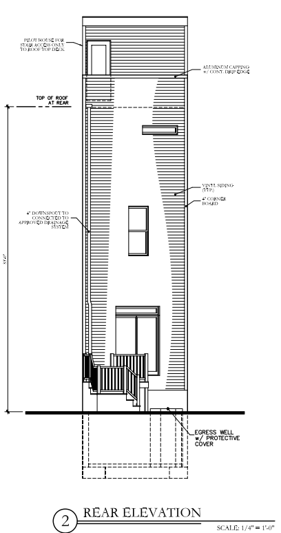
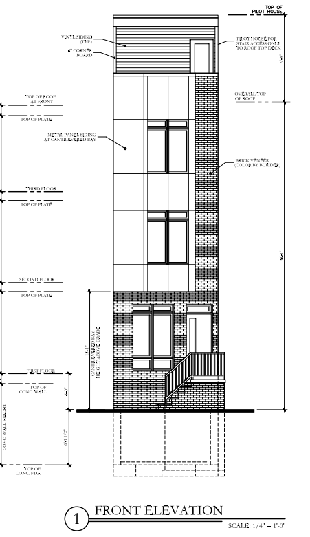
Brick Moon Capital recently funded a new construction loan in Philadelphia Pennsylvania. The borrower is a repeat borrower and full-time real estate investor. This property is part of a six-property blanket loan for ground up construction projects in Philadelphia. The parcels of land for the blanket loan were purchased for a total $286,500 with a construction budget of $1,617,720 and total loan funded at 90% LTC. The proposed build is for five nearly identical single-family 3-bedroom, 3-bathroom homes measured at approximately 2,000 square feet each. The borrower will continue to hold the property as an income-producing asset with our build to rent program. The property will feature luxury finishes, white oak floors, 10-foot-high ceilings, and floor-to-ceiling windows. Kitchen will be highlighted by quartz countertops, shaker cabinets, and mid-grade stainless steel appliances. Construction is expected to take ten months with loan refinance occurring shortly after completion.

The Results

• After Repair Value
$2,700,000
• Sale Price
Back To All Case Studies