The Client

First-Time Borrower – Experienced Investor
• Loan Purpose
Land Purchase And New Construction
• Loan Structure
12 Months Interest Only

The Investment

New Construction – 3-Unit Multi-Family
• Purchase Price
$180,000
• Renovation Budget
$391,000 (Construction)
• Loan Amount
$476,000
• Cash Available for Purchase
$85,000
• Cash Available for Renovation
$391,000 (Construction)

The ABL Partnership

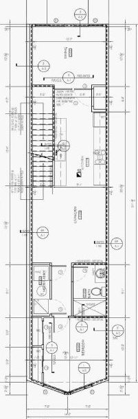
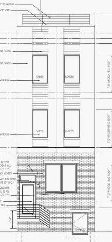
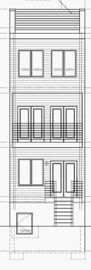
Brick Moon Capital recently funded a hard money new construction loan in Philadelphia Pennsylvania. The borrower is an experienced full-time real estate investor that is working on their first deal with ABL. The parcel of land was purchased for $180,000 with a construction budget of $391,000 and total loan funded at 83% LTC. The proposed build is a three-unit multi-family property that will have one unit as a 3-bedroom, 2.5-bathroom with finished basement and two units as 1-bedroom, 1-bath for a combined square footage of approximately 3,400. Units will feature hardwood floors throughout, 10-foot high ceilings, above builder-grade kitchen cabinets with granite or quartz countertops, bathrooms with tile ceramic floors and high-quality vanities, and more. Construction is expected to take 6 months with an additional 2-3 months for permit approval.

The Results

• After Repair Value
$800,000
• Sale Price
Back To All Case Studies