The Client

Repeat Borrower – Full-Time Real Estate Investor
• Loan Purpose
Cash Out & New Construction
• Loan Structure
12 Months Interest Only

The Investment

New Construction (Three Properties) – Single Family Attached
• Purchase Price
$237,500
• Renovation Budget
$855,000 (Construction)
• Loan Amount
$903,000
• Cash Available for Purchase
$128,000
• Cash Available for Renovation
$855,000 (Construction)

The ABL Partnership

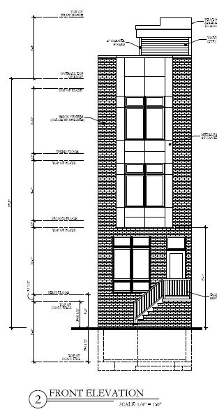
Brick Moon Capital recently funded a new construction blanket loan in Philadelphia Pennsylvania. The borrower is a repeat borrower and full-time real estate investor. The parcel of land was purchased for $237,500 with a construction budget of $855,000 and total loan funded at 83% LTC and 70% LTV. This proposed build is for three identical single-family homes with 3-bedrooms, 4-bathrooms measured at 2,300 square feet. The borrower will hold the properties as an income-producing asset using ABL’s build to rent program. Homes will be highlighted by red brick façade,10-foot-high ceilings, finished basement with full bath and laundry, decorative metal siding on front with vinyl siding on sides and rear, high-efficiency HVACs, and a roof deck. Kitchen will feature quartz countertops, high-end appliances, shaker cabinets, and recess lighting. Bathrooms will all have different tiles and receive luxury finishes. Construction is expected to take ten months with loan refinance occurring shortly after project completion.

The Results

• After Repair Value
$1,290,000
• Sale Price
Back To All Case Studies