The Client

Repeat Borrower & Experienced Investor
• Loan Purpose
New Construction
• Loan Structure
12 Months Interest Only

The Investment

New Construction – Single-Family
• Purchase Price
$19,000
• Renovation Budget
$214,812 (Construction)
• Loan Amount
$210,430
• Cash Available for Purchase
• Cash Available for Renovation
$210,430 (Construction)

The ABL Partnership

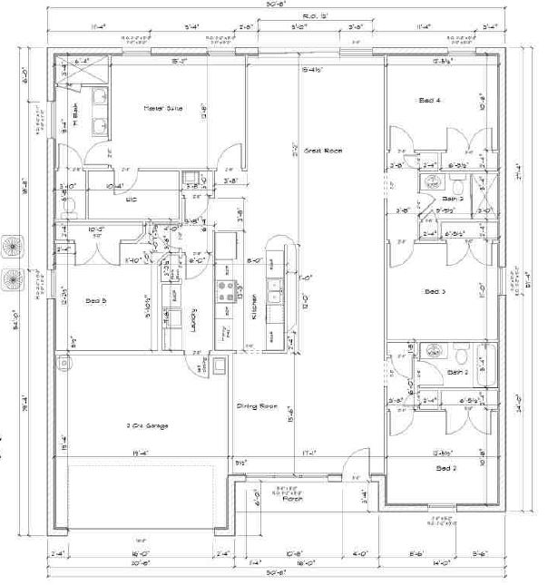
Brick Moon Capital recently funded a new construction hard money loan in Palm Bay, FL. The borrower is a repeat borrower and experienced real estate investor. The parcel was purchased for $19,000 with a construction budget of $214,812 and total loan funded at 90% LTC. The proposed build will be a single family 3-bedroom, 3-bathroom measured at a total of 2660 ft.² and 2121 ft.² under air. Home will feature a concrete exterior and shingle roof highlighted by granite counters, stainless steel appliances, custom cabinets, and tile flooring.

The Results

• After Repair Value
$285,000
• Sale Price
Back To All Case Studies