The Client

Experienced Builder And Investor
• Loan Purpose
Land Purchase And New Construction
• Loan Structure
12 Months Interest Only

The Investment

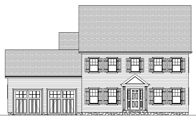
New Build Of Single Family Detached
• Purchase Price
$420,000
• Renovation Budget
$462,465 (Construction)
• Loan Amount
$624,000
• Cash Available for Purchase
$161,535
• Cash Available for Renovation
$462,465 (Construction)

The ABL Partnership

This experienced builder and repeat borrower came to Brick Moon Capital for a land purchase and new construction hard money loan in order to finance the ground up build of a single family detached house. The plans for this construction project are similar to a recent project completed by this investor that quickly sold for over $1,000,000. These plans call for slightly more square footage as well as an additional bedroom.

The Results

• After Repair Value
$1,040,000
• Sale Price
Back To All Case Studies