The Client

Repeat Borrower & Experienced Investor
• Loan Purpose
Cash Out And New Construction
• Loan Structure
12 Months Interest Only

The Investment

New Construction - Single Family
• Purchase Price
$350,000
• Renovation Budget
$880,000 (Construction)
• Loan Amount
$910,000
• Cash Available for Purchase
$30,000
• Cash Available for Renovation
$880,000 (Construction)

The ABL Partnership

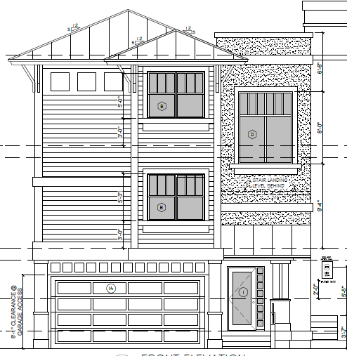
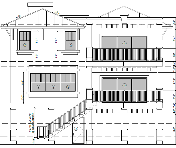
Brick Moon Capital recently funded a hard money new construction loan in Madeira Beach FL for a repeat borrower with extensive real estate investing experience. The parcel of land was purchased for $350,000 with a construction budget of $880,000 and a total loan funded at nearly 74% LTC. The subject build will be a three-story 4-bedroom, 3.5-bathroom single-family home with an elevator. The total square footage under air will be 3141 ft.². The home will feature custom luxury finishes including unique tiling in each bathroom and quartz countertops in the kitchen. The home will include weather safety measures such as a metal roof and 150mph windproof windows. Construction is set to take approximately 8 months and is expected to sell before completion.

The Results

• After Repair Value
$1,800,000
• Sale Price
Back To All Case Studies