The Client

First Time Borrower — Experienced Real Estate Investor
• Loan Purpose
Land Purchase & Property New Construction
• Loan Structure
12 months interest only

The Investment

New Construction — Single Family
• Purchase Price
$72,500
• Renovation Budget
$352,000 (Construction)
• Loan Amount
$360,000
• Cash Available for Purchase
$40,000
• Cash Available for Renovation
$320,000 (Construction)

The ABL Partnership

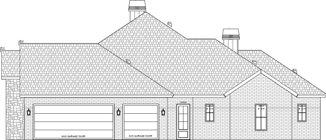
Brick Moon Capital recently funded a hard money new construction loan in Lubbock Texas. The borrower is a first time borrower and experienced real estate investor. The proposed build is a 4-bedroom, 3-bathroom single-family measured at 3,100 square feet. Property will be highlighted by Milgard windows, brick and stone facade, LVP and carpet floors, and mid-grade finishes. Kitchen will feature birch and maple cabinets, granite countertops, tile backsplash, and stainless steel appliances. Bathrooms will feature full tub and shower combos with granite countertops, with the master bathroom boasting a dual vanity. Construction is expected to take approximately six months, with final sale occurring shortly after completion.

The Results

• After Repair Value
$630,000
• Sale Price
Back To All Case Studies