The Client

Experienced Investor and Builder
• Loan Purpose
Land Purchase & New Construction
• Loan Structure
12 Months Interest Only

The Investment

New Construction - Single Family
• Purchase Price
$225,000
• Renovation Budget
$235,500
• Loan Amount
$368,000
• Cash Available for Purchase
$132,000
• Cash Available for Renovation
$235,000

The ABL Partnership

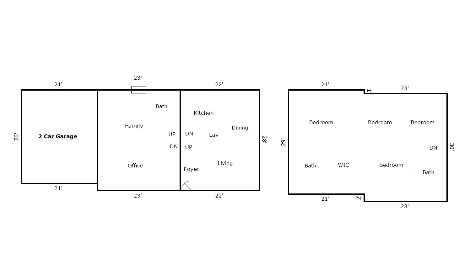
After demolishing the fire-damaged house that sits on this property, these investors will build on the existing foundation to create a high-efficiency smart house worth almost $650,000. With an open floor plan, a built-in pool, and hardwood floors throughout, the finished home will be perfect for a young, modern family. They plan to finish this new construction project in 5 months; since one of the borrowers has built over 115 houses since 1996, we’re sure they can handle the challenge.

The Results

• After Repair Value
$649,000
• Sale Price
Back To All Case Studies