The Client

Experienced Builder and Investor
• Loan Purpose
Land Purchase & New Construction
• Loan Structure
12 Months Interest Only

The Investment

New Construction - Single Family
• Purchase Price
$75,500
• Renovation Budget
$170,000
• Loan Amount
$196,000
• Cash Available for Purchase
$26,000
• Cash Available for Renovation
$170,000

The ABL Partnership

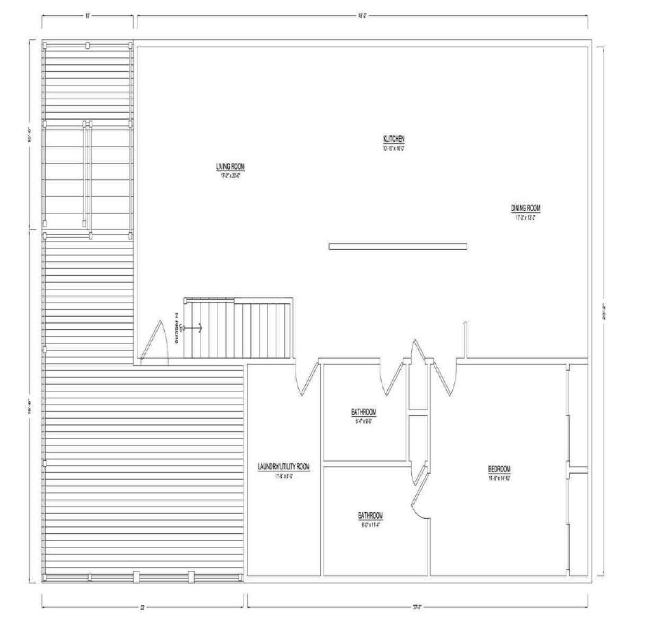
This 2400 sq. ft. new construction project will be this experienced builder’s first new construction project as an investor, but he has experience with several large rehabs that we’re confident will help him pull it off without issue. When completed, this two story home will have at least 3 beds and 2 baths, high-end finishes like hardwood floors and granite countertops, a deck with a view of the NYC skyline, and cedar shake siding. This builder knows what buyers want; he will install LED lights and highly efficient appliances. We’re excited to watch this investor’s first new construction project develop!

The Results

• After Repair Value
$395,000
• Sale Price
Back To All Case Studies