The Client

Experienced Investor & Builder
• Loan Purpose
Land Purchase And New Construction
• Loan Structure
12 Months Interest Only

The Investment

New Construction - Single Family
• Purchase Price
$98,000
• Renovation Budget
$282,000 (Construction)
• Loan Amount
$282,000
• Cash Available for Purchase
$60,000
• Cash Available for Renovation
$222,000 (Construction)

The ABL Partnership

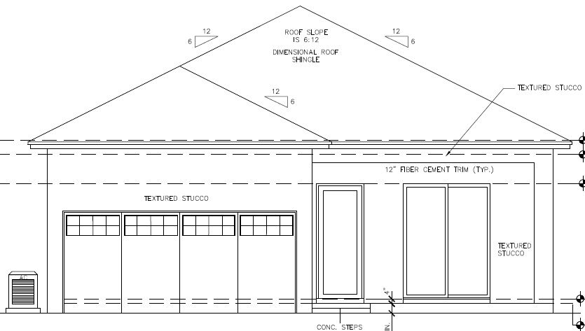
Brick Moon Capital if proud to welcome back this repeat borrower and very experienced builder in St Petersburg Florida. The hard money loan is for the land purchase and new construction of a 2926 square foot 5-bed 2-bath single family home. The project is routine for this builder, having already built the same model house down the block from this one. The investor plans to have the construction done in under 3 months, and has already pre-sold the home.

The Results

• After Repair Value
$453,000
• Sale Price
Back To All Case Studies