The Client

Repeat Borrower & Experienced Investor
• Loan Purpose
Land Purchase And New Construction
• Loan Structure
12 Months Interest Only

The Investment

New Construction - 2 Single Family Homes
• Purchase Price
$770,000
• Renovation Budget
1,000,000 (Construction)
• Loan Amount
$1,416,000
• Cash Available for Purchase
416,000
• Cash Available for Renovation
1,000,000 (Construction)

The ABL Partnership

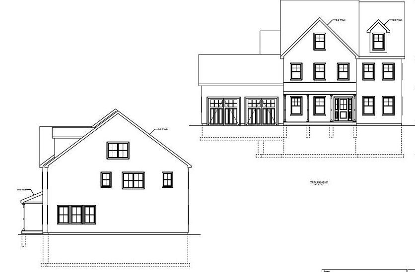
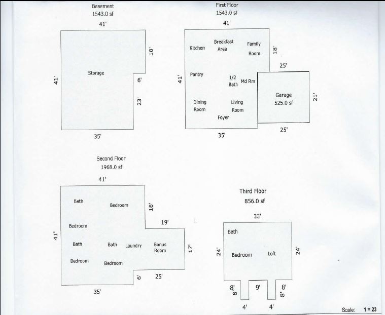
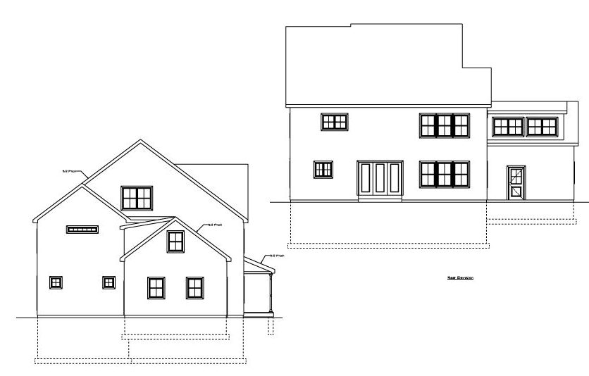
Brick Moon Capital recently funded a new construction in Fairfield CT for a repeat borrower with a history of successful real estate investments. The project involves building two single-family homes on a piece of land that was purchased for $770,000 and a construction budget of $1,000,000 financed at 80% LTC overall. This hard money construction loan is funding two separate 4,351 sq foot homes that will feature three floors with 5 bedrooms and 4.5 bathroom, including a walk-up attic and storage basement. Our borrower is an experienced builder, contractor, and real estate investor that has worked with ABL on several successful deals throughout the years. We are happy to provide our experienced borrowers with the best new construction loans CT has to offer.

The Results

• After Repair Value
$2,405,000
• Sale Price
Back To All Case Studies