The Client

First time borrower with previous new construction experience
• Loan Purpose
Cash Out and New Construction
• Loan Structure
12 Months Interest Only

The Investment

New Construction – Multi-Family 2
• Purchase Price
$82,000
• Renovation Budget
$257,000
• Loan Amount
$270,000
• Cash Available for Purchase
$13,000 (Cash Out)
• Cash Available for Renovation
$257,000 (Construction)

The ABL Partnership

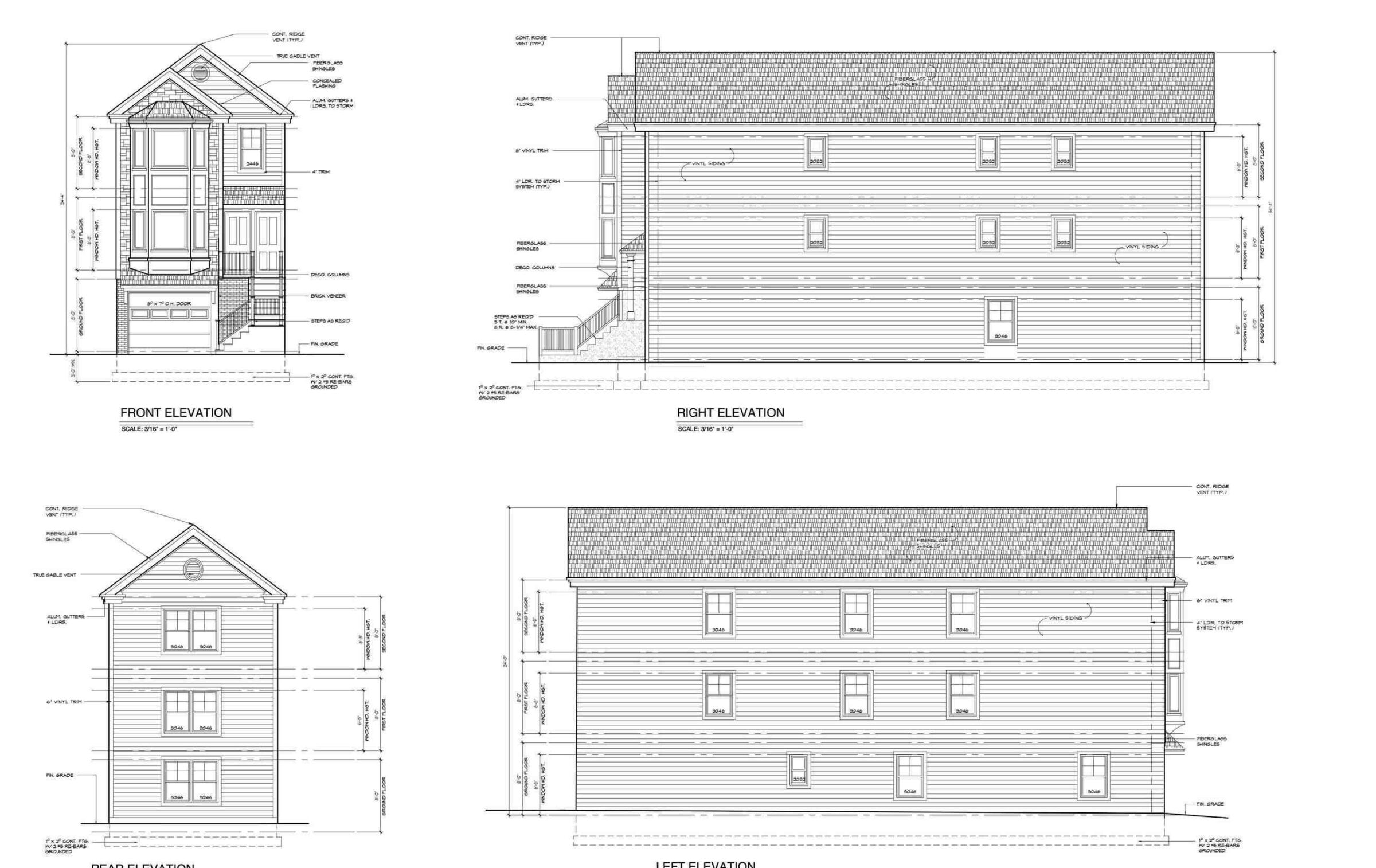
Brick Moon Capital recently funded a hard money new construction loan in Paterson NJ for a first-time borrower with previous new construction experience. The project is a multi-family home being built on land purchased for $82,000 with a construction budget of $257,000 funded at nearly 80% LTC. Each unit will be approximately 1,158 square foot in size and feature three bedrooms and two baths with a total ARV of $450,000. The home will be highlighted by a fully finished basement and attached patio area. Our borrower has chosen an exit strategy of renting and refinancing the property, which we’re happy to help with. ABL proudly offer new construction loans throughout the entire state of New Jersey for experienced builders.

The Results

• After Repair Value
$450,000
• Sale Price
Back To All Case Studies