The Client

Experienced Investor & General Contractor
• Loan Purpose
New Construction
• Loan Structure
12 Months Interest Only

The Investment

New Construction - Townhomes
• Purchase Price
$198,000
• Renovation Budget
$1,530,000 (Construction)
• Loan Amount
$1,530,000
• Cash Available for Purchase
$0
• Cash Available for Renovation
$1,530,000 (Construction)

The ABL Partnership

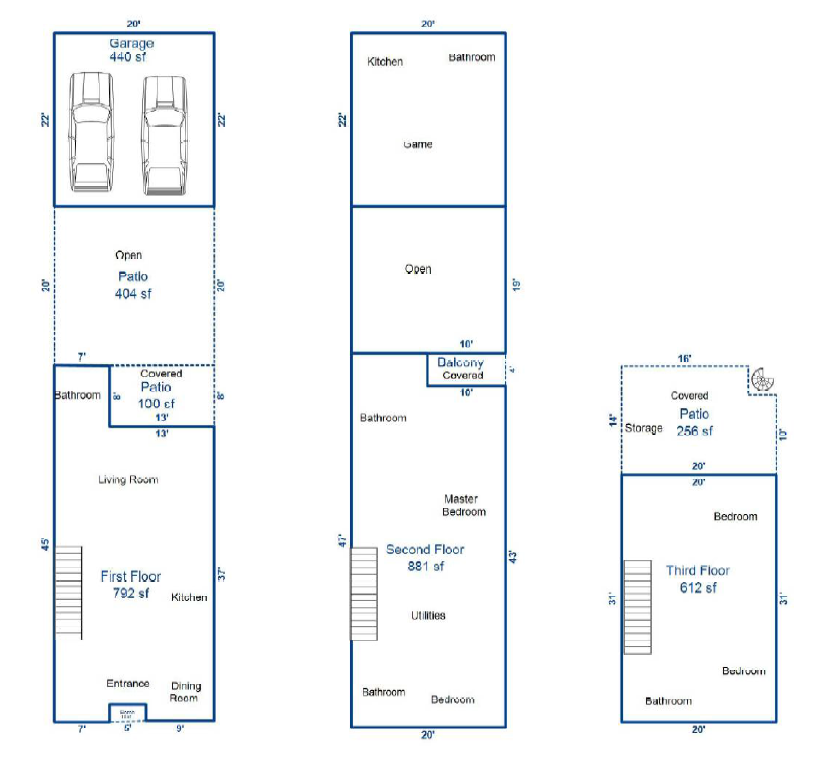
Brick Moon Capital recently funded a hard money loan for a repeat borrower and licensed General Contractor in Tampa, Florida. The borrower purchased the land in cash, and plans to build 6 attached 3-story townhouses. Each townhouse will be an identical 4 bed / 4 bath 3,620 sqft single family home with 10 foot ceilings, roof terrace and balcony, and high-end finishes. Each home will have have unique accents and finishes to set it apart from the other units as well smart home capabilities and a 2-car garage. ABL was able to finance this FL hard money loan for new construction at 80% of total cost.

The Results

• After Repair Value
$2,760,000
• Sale Price
Back To All Case Studies