The Client

Experienced Investor & Builder
• Loan Purpose
New Construction
• Loan Structure
12 Months Interest Only

The Investment

New Construction - Townhomes
• Purchase Price
$324,000
• Renovation Budget
$2,016,000 (Construction)
• Loan Amount
$1,872,000
• Cash Available for Purchase
• Cash Available for Renovation
$1,872,000 (Construction)

The ABL Partnership

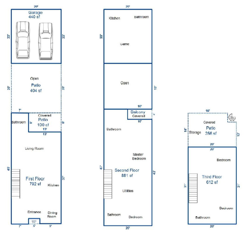
Brick Moon Capital recently financed an exciting new project for a repeat borrower and experienced investor in Tampa, Florida. The investor purchased the property in cash several weeks prior, and then came to ABL to finance the cost to build. The hard money construction loan will be used to build 7 attached three-story townhouses. Each townhouse will be a 2,310 square foot single family home with 4 bedrooms, 4 bathrooms, and a 2 car garage. The homes will have high end finishes throughout, including multi-zone heat and air, crown moldings, 10 foot ceilings, and unique tile and granite.

The Results

• After Repair Value
$3,535,000
• Sale Price
Back To All Case Studies