The Client

Repeat Borrower & Experienced Investor
• Loan Purpose
Land Purchase And New Construction
• Loan Structure
12 Months Interest Only

The Investment

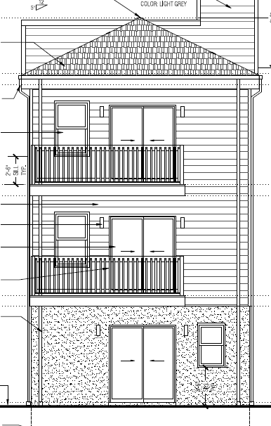
New Construction - 2 Condos
• Purchase Price
$530,000
• Renovation Budget
$500,000 (Construction)
• Loan Amount
$824,000
• Cash Available for Purchase
$324,000
• Cash Available for Renovation
$500,000 (Construction)

The ABL Partnership

Brick Moon Capital recently funded a hard money loan for new construction in Jersey City NJ for a repeat borrower with previous real estate investing experience. The property was purchased for $530,000 with a construction budget of $500,000 and total loan financed at 80% LTC. The property is currently a single-family home that will be demolished and turned into a new two-unit condo. Both units will have similar floor plans with 3 bedrooms, 2 baths highlighted by 9-foot-high ceilings, 2-car garage, and high-end finishes, but each unit will have slight variations to distinguish them. The first unit will be 1485 square feet with a bonus room behind the garage and direct access to the yard. The second unit will be 1232 square feet with direct access to a roof deck. ABL has worked with this borrower in the past and their high quality of work has improved the neighborhoods of various cities. Our team is happy to provide the most reliable hard money loans for new construction for experienced real estate investors.

The Results

• After Repair Value
$1,286,000
• Sale Price
Back To All Case Studies