The Client

Experienced Investor & Builder
• Loan Purpose
Land Purchase And New Construction
• Loan Structure
12 Months Interest Only

The Investment

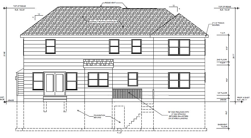
New Construction - Single Family
• Purchase Price
$810,000
• Renovation Budget
$475,000 (Construction)
• Loan Amount
$961,000
• Cash Available for Purchase
$486,000
• Cash Available for Renovation
$475,000 (Construction)

The ABL Partnership

With a background in engineering and construction, this borrower is well prepared to take on the challenge of a $500,000 new construction project. It will be his second new construction project in Jericho – the first of which sold for over $1.6 million, as well. The fortunate future owners of this brand new home will have five bedrooms, four and a half baths, and access to one of the top rated schools in the country. With buyers already lined up, this investment is sure to be a success.

The Results

• After Repair Value
$1,625,000
• Sale Price
Back To All Case Studies