The Client

Experienced investor, active ABL borrower
• Loan Purpose
Land Purchase And New Construction
• Loan Structure
12 Months Interest Only

The Investment

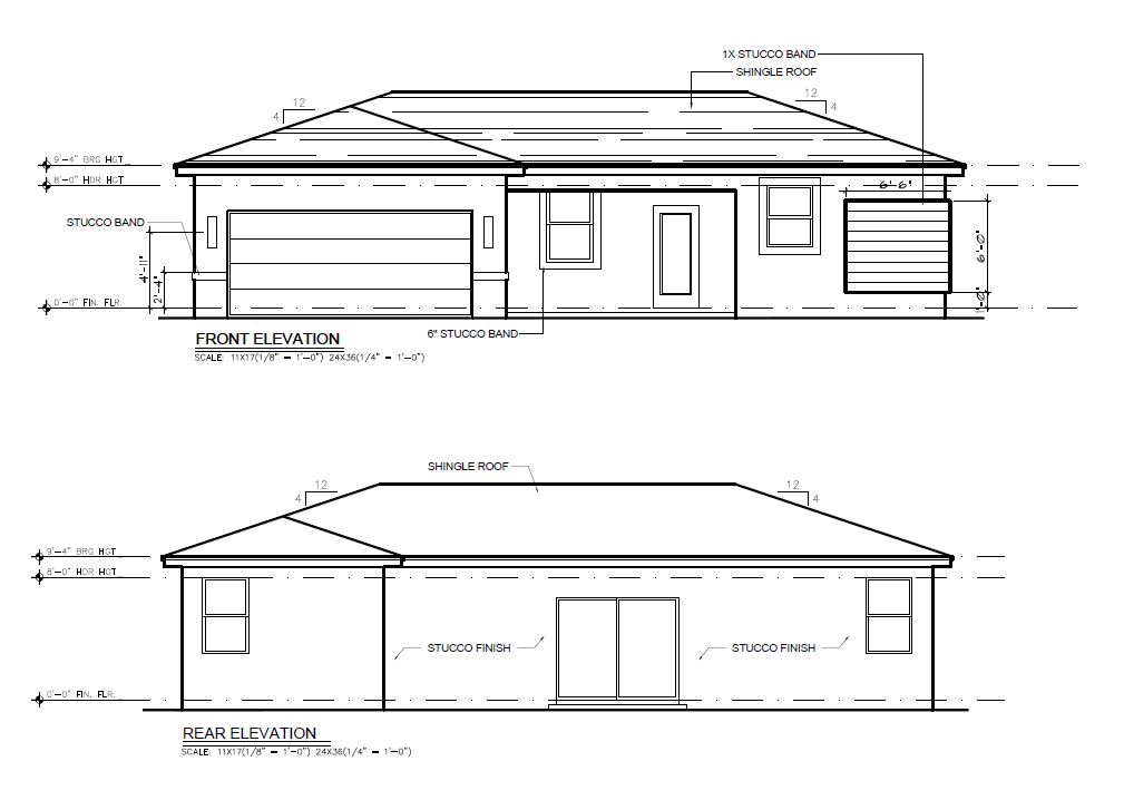
New Construction – Single-Family
• Purchase Price
$18,000
• Renovation Budget
$123,400
• Loan Amount
$117,000
• Cash Available for Purchase
$7,000
• Cash Available for Renovation
$110,000

The ABL Partnership

Brick Moon Capital recently funded a hard money new construction loan for an experienced real estate investor in Poinciana, Florida, offering 82% of total deal cost. The 1,717 square foot floorplan includes 3 bedrooms, 2 bathrooms, a 2-car garage, and an open backyard patio.

The Results

• After Repair Value
$190,000
• Sale Price
Back To All Case Studies