The Client

Experienced Investor & Builder
• Loan Purpose
New Construction Only
• Loan Structure
12 Months Interest Only

The Investment

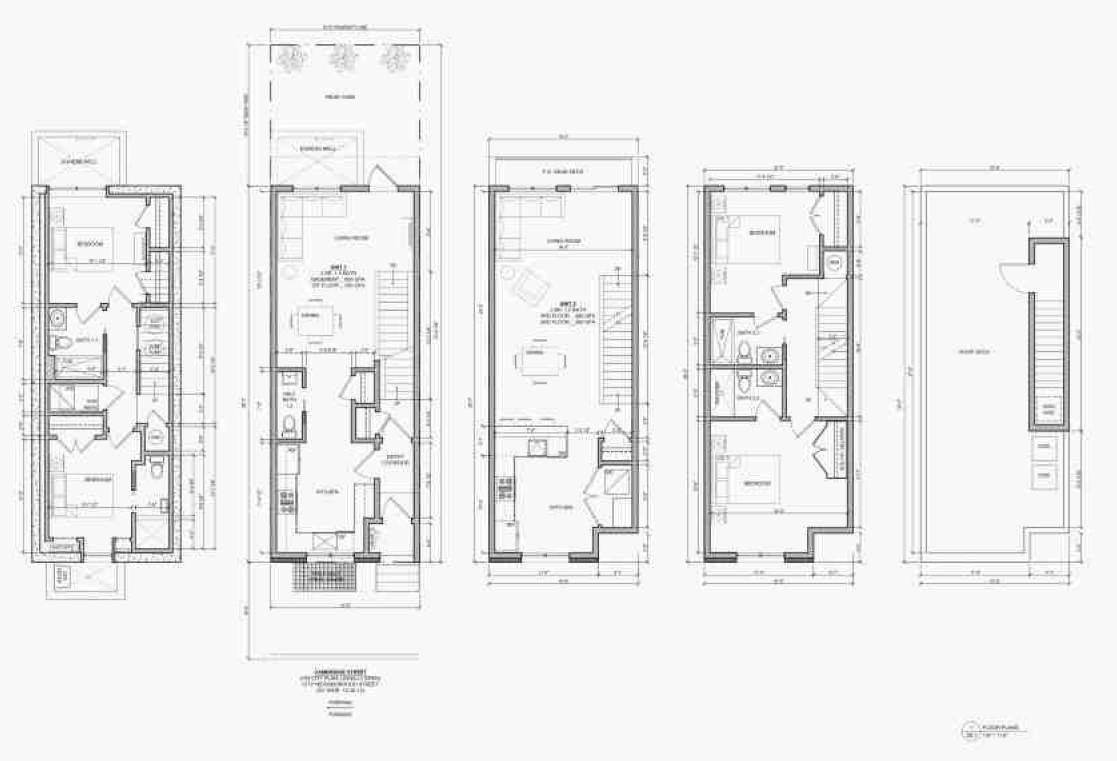
New Construction - Duplex
• Purchase Price
$1,000,000
• Renovation Budget
$1,250,000
• Loan Amount
$1,250,000
• Cash Available for Purchase
$100,000
• Cash Available for Renovation
$1,150,000

The ABL Partnership

This experienced builder and investor is starting the second phase of a major new construction project in Philadelphia. For this borrower’s fifth deal with ABL, he is building eight brand new 2-family homes with a total ARV of nearly $6 million. In the first phase, he completed four of the buildings; he will use this $1.25 million dollar loan to finish the project with four more modern, high-end duplexes. After fifteen projects completed in Philadelphia over two years, this investor certainly knows what buyers are looking for; it’s no wonder three of the duplexes have already sold.

The Results

• After Repair Value
$2,920,000
• Sale Price
Back To All Case Studies