The Client

Repeat Borrower — Experienced Real Estate Developer
• Loan Purpose
Refinance & New Construction
• Loan Structure
15 months interest only

The Investment

New Construction — Single Family Blanket
• Purchase Price
$240,000
• Renovation Budget
$1,426,200 (Construction)
• Loan Amount
$1,416,000
• Cash Available for Purchase
$0
• Cash Available for Renovation
$1,416,000 (Construction)

The ABL Partnership

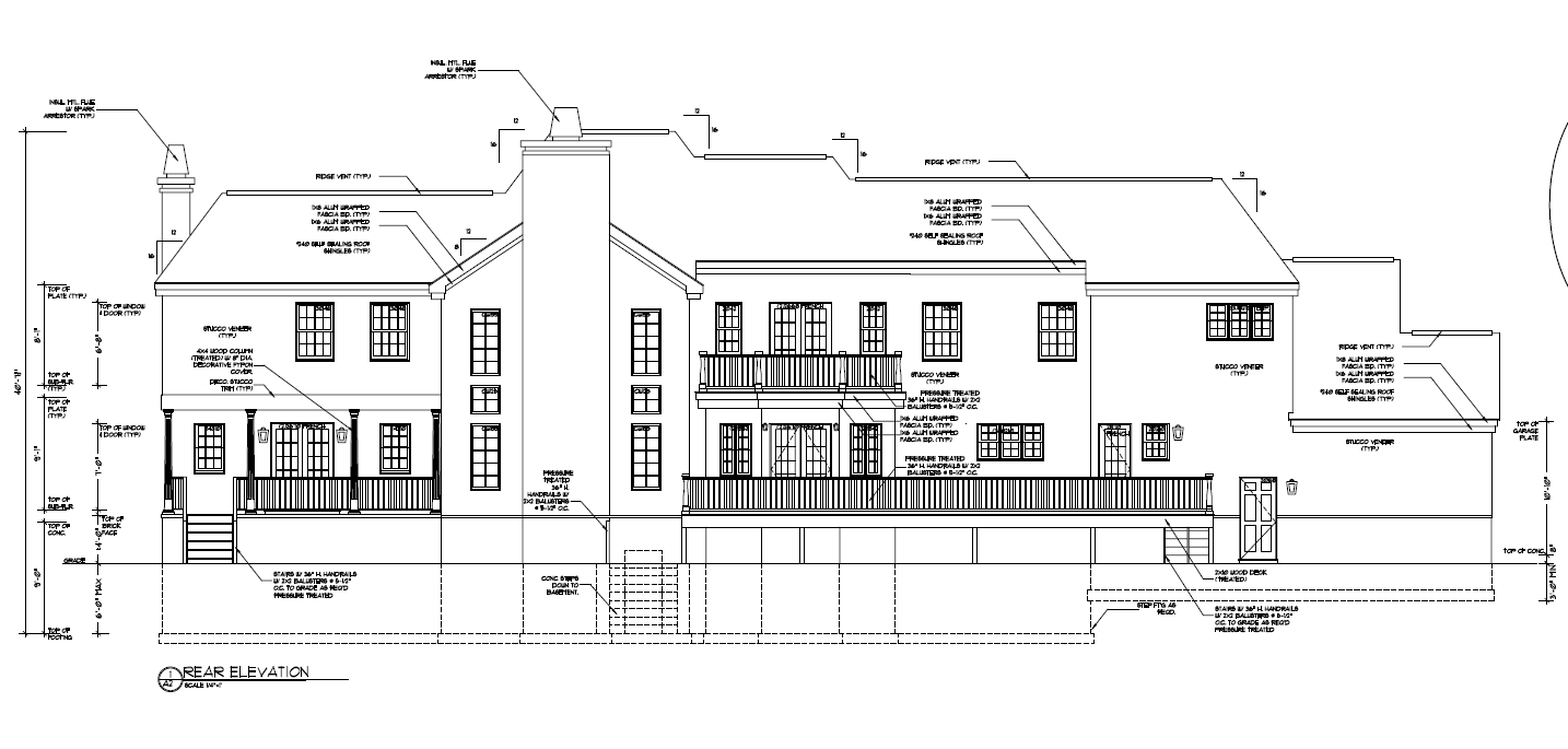
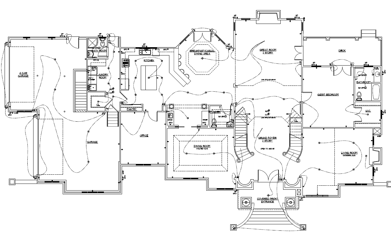
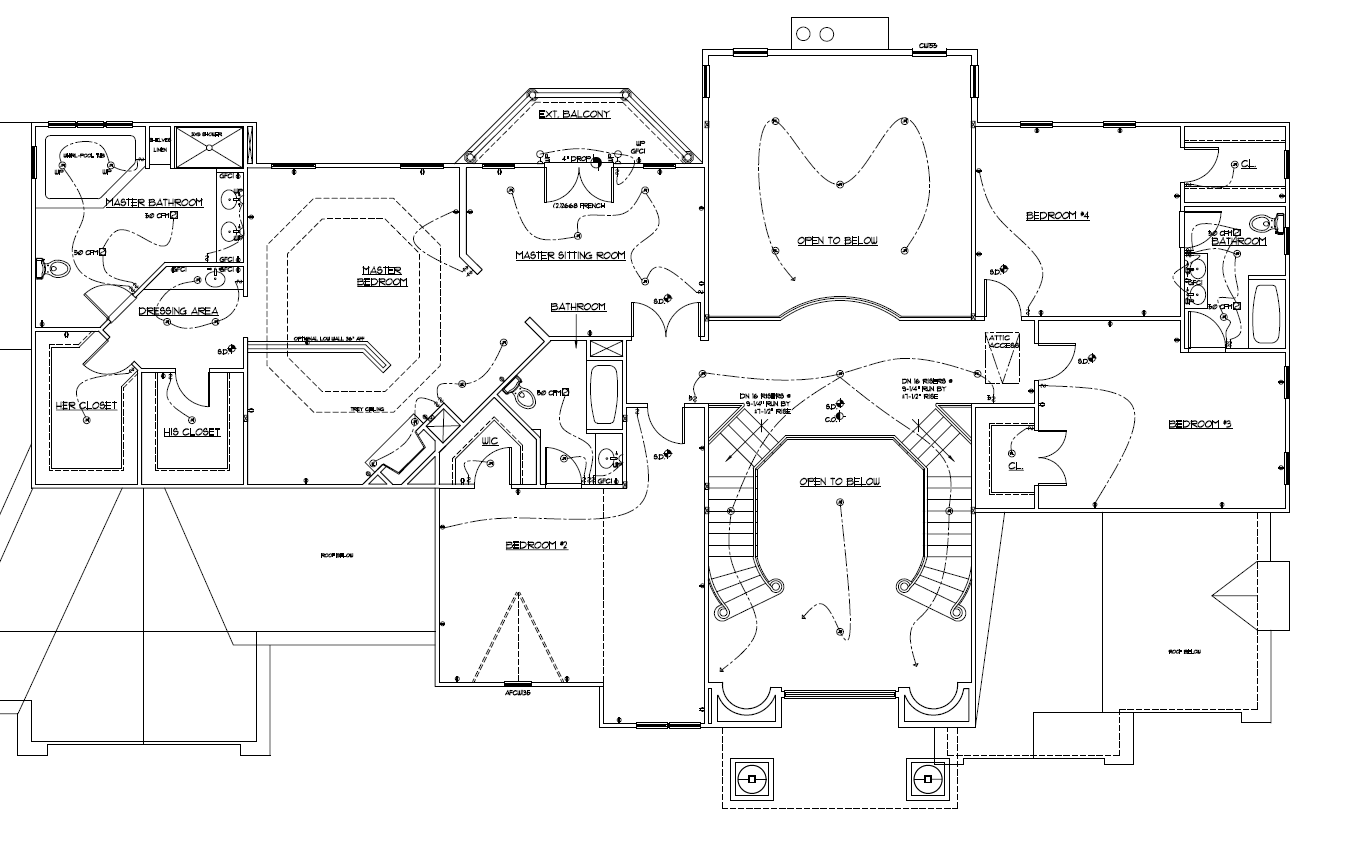
­­­­Brick Moon Capital recently funded a refinance and new construction blanket loan to a repeat borrower and full-time developer in Galloway New Jersey. This borrower has successfully exited 6 ABL loans in the last 3 years and completed development of 80 properties in the last 10 years. This blanket loan for 7 single family homes is apart of a larger project to develop 15 lots in a development they purchased in 2022. The borrower has already completed the necessary steps to have the architectural plans approved, permits acquired, and horizontal work finished. With the borrower’s successful track record ABL was comfortable lending 85% of LTC with a total loan amount of $1,416,000. Plans for these single-family homes are the same. Each home will have 3 bedrooms and 2.5 bathrooms with a 2-car garage. Hardwood floors will be installed throughout the homes and the kitchens will have tile flooring and granite countertops. The main bedroom will have an ensuite bathroom with dual vanities and a standup shower with glass doors. The borrower is offering upgrades when they list the homes for sale which include installing a kitchen island and creating another bedroom in the loft space on the second floor. Construction is expected to last 15 months and the borrower will list the properties for sale.

The Results

• After Repair Value
$2,315,000
• Sale Price
Back To All Case Studies