The Client

Repeat Borrower – Full-Time Real Estate Investor
• Loan Purpose
Property New Construction Only
• Loan Structure
12 Months Interest Only

The Investment

New Construction – Single Family Detached
• Purchase Price
$9,500
• Renovation Budget
$247,000 (Construction)
• Loan Amount
$230,850
• Cash Available for Purchase
$22,170
• Cash Available for Renovation
$208,680 (Construction)

The ABL Partnership

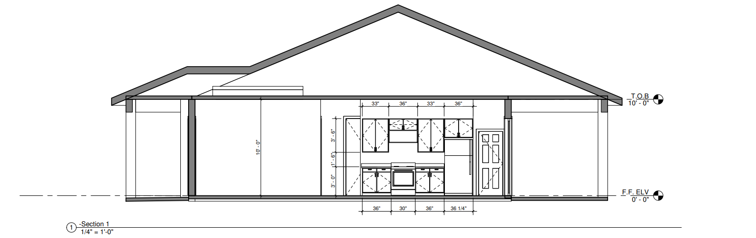
Brick Moon Capital recently funded a new construction loan in Fort Myers Florida. The borrower is a repeat borrower and full-time real estate investor. The land parcel was purchased for $9,500 with a construction budget of $247,000 and total loan funded at 90% LTC. The proposed build is a single-family 3-bedroom, 2-bathroom measured at 1,590 square feet. Property will feature block and stucco façade, asphalt roof, impact windows, tile floors, solid core doors, and 10-foot-high ceilings. Kitchen will be highlighted by high-end finishes and appliances, while the bathrooms will feature enclosed rain shower and identical finishes. Project is expected to take six months with final sale occurring shortly after completion.

The Results

• After Repair Value
$310,000
• Sale Price
Back To All Case Studies