The Client

First Time Borrower, Experienced Investor
• Loan Purpose
New Construction
• Loan Structure
12 Months Interest Only

The Investment

New Construction – Three Single-Family Homes
• Purchase Price
$27,500
• Renovation Budget
$735,000 (Construction)
• Loan Amount
$675,000
• Cash Available for Purchase
$0
• Cash Available for Renovation
$675,000 (Construction)

The ABL Partnership

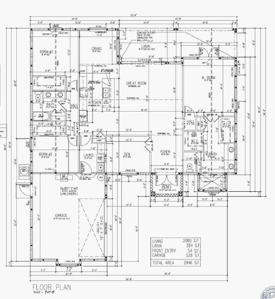
Brick Moon Capital recently funded a new construction hard money loan in Fort Meyers, Florida. The borrower is an experienced real estate investor that previously focused on fix and flips but has begun to invest in new construction projects. The property was purchased for $27,500 with a construction budget of $735,000 and total loan funded at 89% LTC. This is a blanket loan to cover the ground-up construction of three homes simultaneously. The proposed builds are three separate single-family 3-bedroom, 2-bathroom homes measured at a total of 3,100 square footage each. Home will be highlighted by 10-foot-high ceilings, porcelain tile floors, granite countertops and hardwood cabinets in the kitchen, crown molding throughout, a large den, and more. Construction is expected to take approximately three to four months and final sale is expected before project completion.

The Results

• After Repair Value
$900,000
• Sale Price
Back To All Case Studies