The Client

Experienced Investor & Builder
• Loan Purpose
Land Purchase And New Construction
• Loan Structure
12 Months Interest Only

The Investment

New Construction - Single Family
• Purchase Price
$105,000
• Renovation Budget
$265,000 (Construction)
• Loan Amount
$297,000
• Cash Available for Purchase
$32,000
• Cash Available for Renovation
$265,000 (Construction)

The ABL Partnership

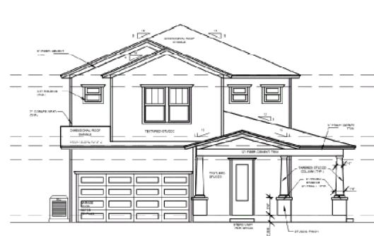
Brick Moon Capital is proud to finance another land purchase and new construction hard money loan for a repeat borrower and experienced investor in St Petersburg, Florida. The investor will demolish the existing structure and a build a 2,248 square foot 4 bedroom 3 bathroom single family home with a formal dining room, office, and garage. The finished product will include high end finishes and a large 30 foot backyard.

The Results

• After Repair Value
$500,000
• Sale Price
Back To All Case Studies