The Client

Repeat Borrower & Experienced Investor
• Loan Purpose
Land Purchase And New Construction
• Loan Structure
12 Months Interest Only

The Investment

New Construction - Single Family
• Purchase Price
$385,000
• Renovation Budget
$500,000 (Construction)
• Loan Amount
$731,000
• Cash Available for Purchase
$231,000
• Cash Available for Renovation
$500,000 (Construction)

The ABL Partnership

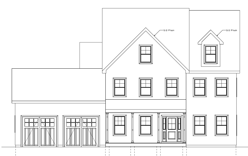
Brick Moon Capital recently funded a hard money new construction loan in Fairfield CT for a repeat borrower with extensive real estate investing experience. The property was purchased for $385,000 with a construction budget of $500,000 with a total loan funded at nearly 83% LTC. The borrower’s exit strategy is to sell the property for a total ARV of $1,175,000. The current property will be demolished to allow for the new construction, which will be a Colonial single-family detached 5-bedroom, 4.5-bathroom measured at approximately 4700 square feet. Home will feature an open floor plan and be highlighted by 9-foot-high coffered ceilings, hardwood oak floors, and pickled white finishes. Each bathroom will have its own unique tile patterns and finishes. Construction is expected to take approximately 6 months and is expected to sell within 3 months of project completion.

The Results

• After Repair Value
$1,175,000
• Sale Price
Back To All Case Studies