The Client

Experienced Investors and Contractors
• Loan Purpose
New Construction
• Loan Structure
12 months interest only

The Investment

New Build Of Single Family House
• Purchase Price
• Renovation Budget
$320,000
• Loan Amount
$392,000
• Cash Available for Purchase
• Cash Available for Renovation
$320,000 (Construction)

The ABL Partnership

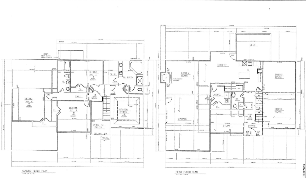
These experienced investors came to Brick Moon Capital looking for a loan to fund their new construction of a single-family property in Danbury, Connecticut. With professional contractor experience, these investors combine for over 20 ground-up new construction builds.

The Results

• After Repair Value
$675,000
• Sale Price
Back To All Case Studies