The Client

Repeat Borrower & Experienced Builder
• Loan Purpose
Land Purchase And New Construction
• Loan Structure
12 Months Interest Only

The Investment

New Construction – Single-Family
• Purchase Price
$225,000
• Renovation Budget
$450,000 (Construction)
• Loan Amount
$607,000
• Cash Available for Purchase
$157,000
• Cash Available for Renovation
$450,000 (Construction)

The ABL Partnership

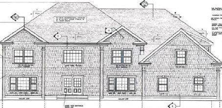
Brick Moon Capital recently funded a new construction hard money loan in Danbury Connecticut. The borrower is a repeat borrower and experienced builder & real estate investor. The property was purchased for $225,000 with a construction budget of $450,000 with total loan funded at 90% LTC. The proposed build is a single-family 4-bedroom, 3.5-bathroom measured at approximately 4,000 square feet. The borrower has successfully built and sold this identical build using ABL on a previous deal. Home will be highlighted by 9-foot-high ceilings, vaulted foyer, solid core doors, and stonework façade. Kitchen will feature custom cabinets, quartz countertops, marble backsplash, and above-average appliances. Baths will feature quartz tile walls, large showers with rain head, and soaking tub in master bath. Project is expected to take seven months with final sale occurring before the project is completed.

The Results

• After Repair Value
$1,000,000
• Sale Price
Back To All Case Studies