The Client

Repeat Borrower — Experienced Real Estate Developer
• Loan Purpose
Land Purchase & Property New Construction
• Loan Structure
12 months interest only

The Investment

New Construction — Single Family Detached
• Purchase Price
$220,000
• Renovation Budget
$300,000 (Construction)
• Loan Amount
$442,000
• Cash Available for Purchase
$471,900
• Cash Available for Renovation
$300,000 (Construction)

The ABL Partnership

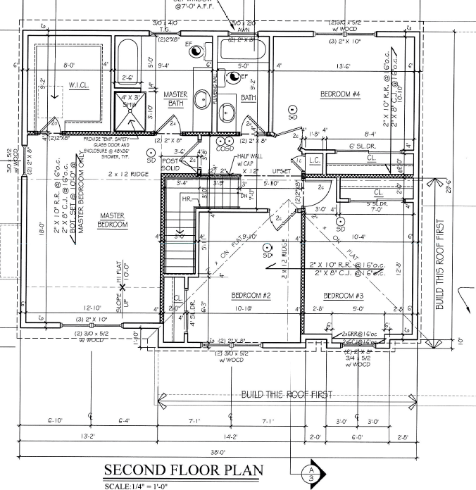
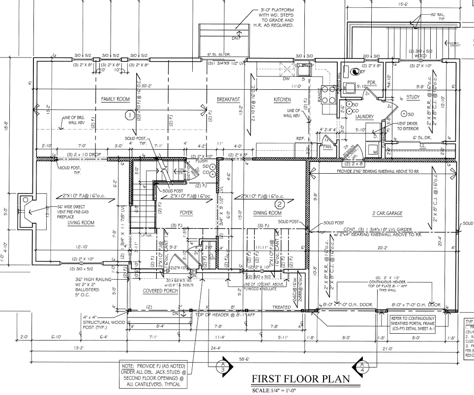
­Brick Moon Capital recently funded a new construction project for a repeat borrower and experienced real estate developer in Centereach New York. This borrower has completed multiple ground up construction projects using the same architectural plans as this property. The scope of work for this project includes an open concept kitchen and living space on the first floor, and a mudroom where you enter the 2-car garage. The second floor features the primary suite as well as two more bedrooms. Plans for the kitchen include shaker cabinets, granite countertops, stainless steel appliances, and an island that seats 3. This borrower already has a buyer lined up, and once construction is complete, they will finalize the sale.

The Results

• After Repair Value
$860,000
• Sale Price
Back To All Case Studies