The Client

Experienced Investors
• Loan Purpose
Cash Out And New Construction
• Loan Structure
12 Months Interest Only

The Investment

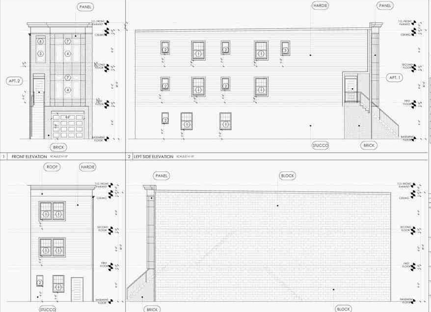
New Construction - Two Family
• Purchase Price
$196,000
• Renovation Budget
$250,000 (Construction)
• Loan Amount
$356,000
• Cash Available for Purchase
$106,000 (Cash Out)
• Cash Available for Renovation
$250,000 (Construction)

The ABL Partnership

Brick Moon Capital recently funded a cash out and new construction loan for a team of investors that recently purchased this Multi-Family 2 at county auction. The experienced team of investors owns several rental properties, and intends to use ABL’s rental loan program to keep this property for rental income. The finished property will be a 2700 sqft 2 family. Each unit will be a 3 bed/2 bath apartment with above average quality finishes, central air in each unit, high end glass tiles, engineered hardwood floors throughout, as well as a private driveway and backyard.

The Results

• After Repair Value
$725,000
• Sale Price
Back To All Case Studies